Verkauf Einfamilienhaus Budapest, XX. kerület - Erzsébetfalva

Verkauf Budapest, XX. kerület Einfamilienhaus
209 m2Wohnfläche 6 Zimmer
79 000 000 HUF Kaufpreis
392613ID nummer
Weitere Informationen

291 m2 Grundstück

Hof Ansicht

Zu renovieren Zustand

Tégla Struktur

Gas (Umlauf) Heizung

voller Komfort Komfort

Stellplatz Parkplatz

Gut Öffentliche Verkehrsmittel

Nein Amerikanische Küche

Es gibt Zugang zum garten

1983 Baujahr

Befektetők, kivitelezők, figyelmébe ajánljuk!

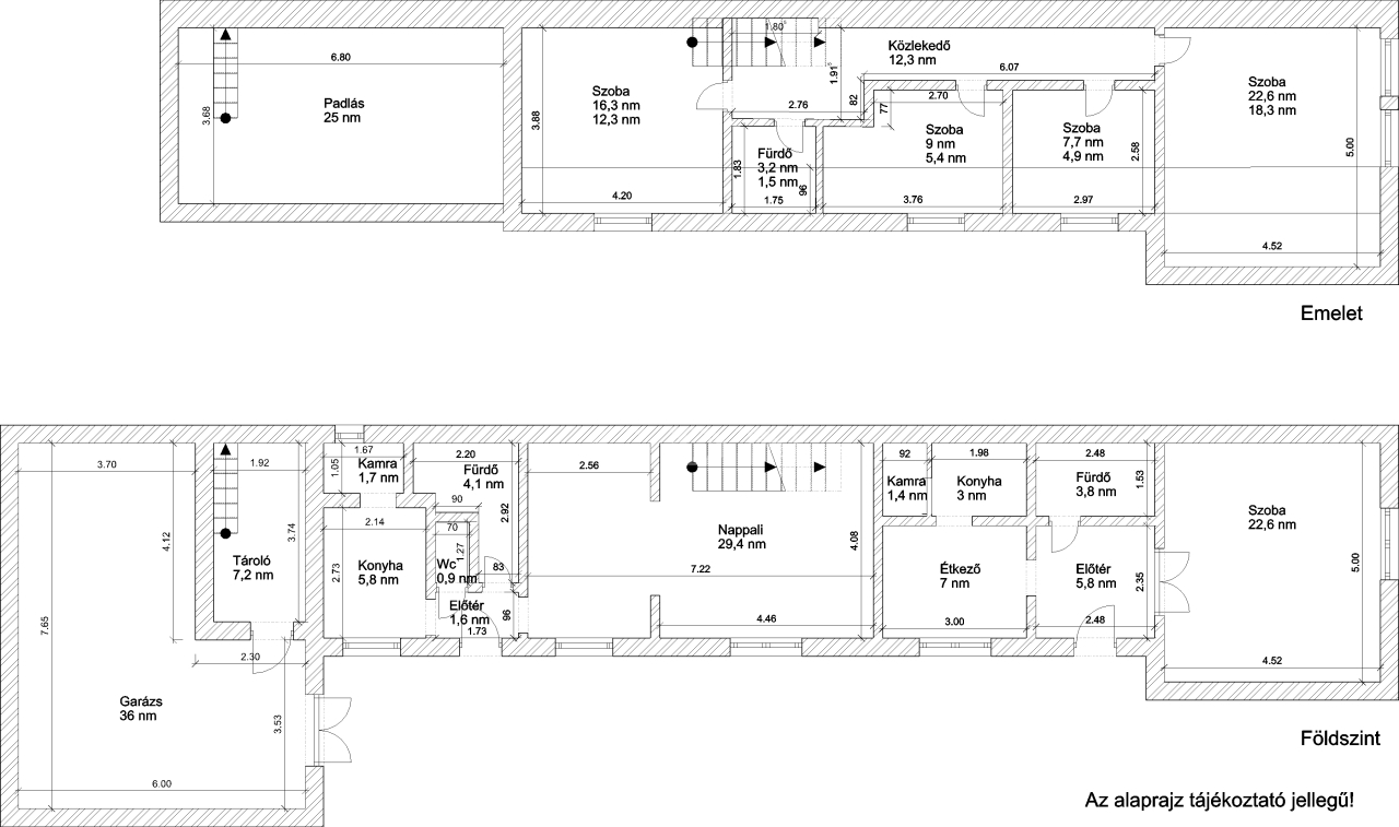
Pesterzsébet legjobb kertvárosi részén kínálunk megvételre egy nettó 209 nm alapterületű, kétszintes, téglából épült, önálló családi házat 291 nm-es telken. Az ingatlan teljes mértékben felújítandó!

A ház földszinti része a 60-as években épült, a felsőszintet a 80-as évek végén építették rá, jelenleg 2 külön bejáratú lakásra van osztva.

Beosztása:
földszint:
- előtér 5,8 nm,
- étkező 7 nm,
-konyha 3 nm,
-kamra 1,4 nm,
-fürdő 3,8 nm,
-szoba 22,6 nm,
-nappali 29,4 nm,
-fürdő 4,1 nm,
-előtér 1,5 nm,
- kamra 1,7 nm,
- konyha 5,8 nm,
- tároló 7,2 nm,
- garázs 36 nm,
-----------------------
129,4 nm.

Emelet:
-szoba 18,3 nm,
-szoba 4,9 nm,
-szoba 5,4 nm,
-közlekedő 12,3 nm,
-fürdő 1,5 nm,
-szoba 12,3 nm,
-helyiség 25 nm,
-------------------------
79,7 nm.

Amivel segítjük az Ön ingatlanvásárlását:
- ingyenes hitelügyintézés,
- jogi háttér,
- földhivatali ügyintézés,
- energetikai tanúsítvány,
- a vevő számára az ingatlanközvetítés ingyenes.

Irodánk 30 éves szakmai tapasztalattal áll ügyfelei rendelkezésére!

Várom szíves megkeresését!

Rufen Sie mich zurück

Ähnliche Immobilien

Mudraninec Éva

Mudraninec Éva
Inserent

Rufen Sie uns mit Vertrauen

+36-30-964- Zeig!

Andere eigene Anzeigen