Verkauf Wohnung (Ziegel) Budapest, IX. kerület - Sobieski János utca

Verkauf Budapest, IX. kerület Wohnung (Ziegel)
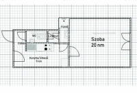
33 m2Wohnfläche 1 Zimmer
64 300 000 HUF Kaufpreis
394512ID nummer
Weitere Informationen

Straße Ansicht

Erneuert Zustand

Tégla Struktur

Elektrisch Heizung

voller Komfort Komfort

Auf Gemeindeflächen Parkplatz

Etage 1

Es gibt nicht Aufzug

Ausgezeichnet Öffentliche Verkehrsmittel

Nein Amerikanische Küche

Es gibt nicht Zugang zum garten

1970 Baujahr

Gemeinsame Gebühren 16 000 HUF

Eladásra kínálunk egy felújított téglaépítésű lakást Budapest szívében, a Sobieski János utcában.
A belvárosi 1. emeleti ingatlan 33 négyzetméter alapterületű, amely ideális választás egyedülállók vagy fiatal párok számára.
A lakás egy kényelmes nagyságú szobával, amelyből az utcai kilátás nyílik, biztosítja a mindennapi kényelmet.
Az elektromos fűtésű lakást teljeskörűen felújították, hogy modern igényeket könnyedén kiszolgáljon.
A meleg és barátságos otthon tökéletes választás lehet azok számára, akik szeretik a belváros nyüzsgését és közelségét.
Ne hagyja ki ezt a remek lehetőséget, lépjen kapcsolatba velünk a részletekért!

Rufen Sie mich zurück

Ähnliche Immobilien

Gábris Hanga

Gábris Hanga
Inserent

Rufen Sie uns mit Vertrauen

+36-70-231- Zeig!

Andere eigene Anzeigen