Verkauf Wohnung (Ziegel) Budapest, V. kerület - Október 6. utca

Verkauf Budapest, V. kerület Wohnung (Ziegel)
90 m2Wohnfläche 4 Zimmer
235 000 000 HUF Kaufpreis
385415ID nummer
Weitere Informationen

Hof Ansicht

Erneuert Zustand

Tégla Struktur

Elektrisch Heizung

Luxus Komfort

Auf Gemeindeflächen Parkplatz

Etage 3

Top etage

Es gibt Aufzug

Ausgezeichnet Öffentliche Verkehrsmittel

Amerikanische Küche

Es gibt nicht Zugang zum garten

1950 Baujahr

Kivételes lehetőség Budapest szívében – kétlakásos, teljes körűen felújított ingatlan az V. kerületben!

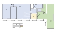
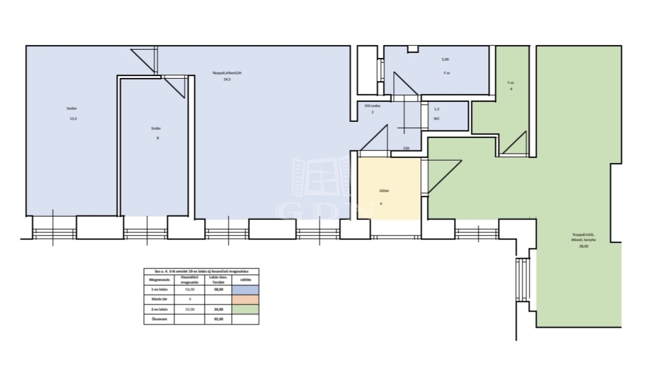
Eladásra kínálunk egy 90 m²-es, teljes körűen felújított lakást Budapest belvárosában, az V. kerület egyik igényes, folyamatosan karbantartott, liftes társasházának harmadik emeletén.

Az ingatlan különlegessége, hogy két különálló lakrészből áll – egy kisebb és egy nagyobb egységből –, így ideális befektetőknek, összeköltözőknek, vagy akár iroda és lakás kombinációjára is. A két lakás külön közműórákkal rendelkezik, így a fenntartásuk is egyszerűen elszámolható.

A ház rendezett, szép állapotú, lakóközössége kulturált, és a folyamatos fejlesztéseknek köszönhetően értéktartó környezetet biztosít.

A környék páratlan infrastruktúrával rendelkezik: boltok, éttermek, kávézók, iskolák, tömegközlekedés, minden elérhető pár perc sétával. A belvárosi élet minden előnyét élvezheti egy nyugodt, igényes környezetben.

Befektetésnek, saját célra, rövid- vagy hosszútávú kiadásra is kiváló választás.

Megtekinthető a hét bármely napján!
Várom a hívását, akár hétvégén is!

B.Cs.

Rufen Sie mich zurück

Ähnliche Immobilien

Balogh Csaba

Balogh Csaba
Inserent

Rufen Sie uns mit Vertrauen

+36-20-310- Zeig!

Andere eigene Anzeigen