Verkauf Wohnung (Ziegel) Budapest, V. kerület - Stollár Béla utca

Verkauf Budapest, V. kerület Wohnung (Ziegel)
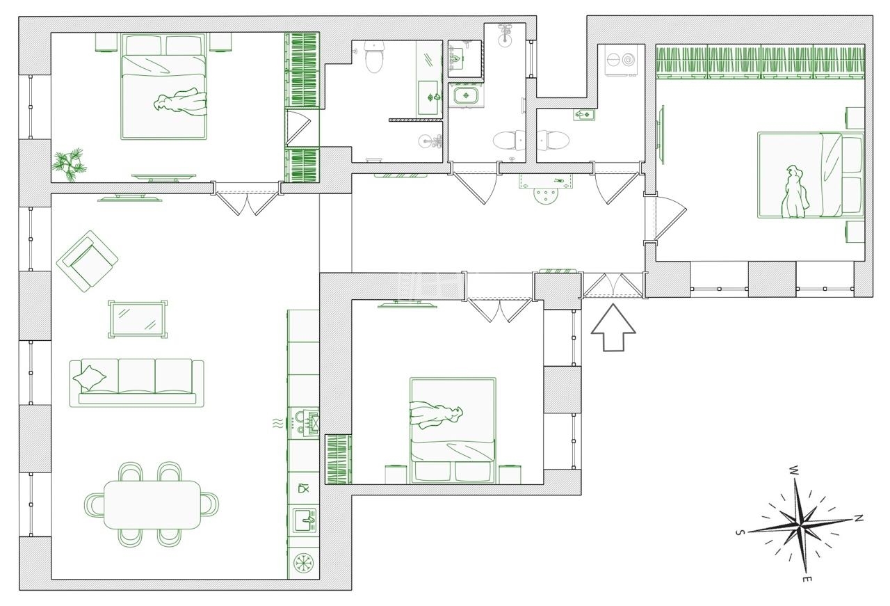
102 m2Wohnfläche 4 Zimmer
259 000 000 HUF Kaufpreis
386414ID nummer
Weitere Informationen

Straße Ansicht

Erneuert Zustand

Tégla Struktur

Gas (Umlauf) Heizung

Luxus Komfort

Auf Gemeindeflächen Parkplatz

Etage 1

Es gibt Aufzug

Ausgezeichnet Öffentliche Verkehrsmittel

Amerikanische Küche

Es gibt nicht Zugang zum garten

1950 Baujahr

Süden Orientierung

Eladó luxuslakás a Parlament szomszédságában, Budapest belvárosában!

A Stollár Béla utcában, elegáns polgári ház 1. emeletén kínálunk megvételre egy 279 millió forintos, teljes körűen felújított, prémium minőségű lakást.

A 3,8 méteres belmagasság, a déli fekvés és a csendes utca kombinációja garantálja a világos, tágas tereket és a nyugodt otthoni hangulatot.

Kialakítás:
• impozáns nappali konyhával és étkezővel (37 m²)
• mester hálószoba saját fürdőszobával és gardróbbal
• további két hálószoba / iroda / gyerekszoba
• második fürdőszoba és külön vendégmosdó
• mosókonyha, tágas előszoba

A lakás minden részlete új: modern gépészet, energiahatékony fűtés és hűtés, tölgyfa parketta, designbútorok és minőségi háztartási gépek.

Elhelyezkedés:
A Parlament, a Bazilika, az Opera, a Margitsziget, bevásárló- és üzleti központok, valamint több neves iskola és egyetem mind sétatávolságban találhatók. A metró mindössze 3 perc alatt elérhető.

Ez az ingatlan ideális választás azok számára, akik a belváros szívében keresnek exkluzív, azonnal költözhető otthont – vagy akár értékálló befektetést.

Ár: 279 millió Ft

Rufen Sie mich zurück

Ähnliche Immobilien

Gombár Renáta

Gombár Renáta
Inserent

Rufen Sie uns mit Vertrauen

+36-70-603- Zeig!

Andere eigene Anzeigen