Verkauf Wohnung (Ziegel) Budapest, XIII. kerület - Váci út

Verkauf Budapest, XIII. kerület Wohnung (Ziegel)
51 m2Wohnfläche 2 Zimmer
84 149 990 HUF Kaufpreis
377970ID nummer
Weitere Informationen

Hof Ansicht

Neubau Zustand

Tégla Struktur

Elektrisch Heizung

voller Komfort Komfort

Auf Gemeindeflächen Parkplatz

Etage 1

Es gibt Aufzug

Ausgezeichnet Öffentliche Verkehrsmittel

Amerikanische Küche

Es gibt nicht Zugang zum garten

2024 Baujahr

!!KIVÁLÓ BEFEKTETÉS A DUNA PLÁZA KÖZELÉBEN!!
!MÁR CSAK NÉHÁNY LAKÁS ELÉRHETŐ!

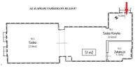
BUDAPEST XIII. kerületben, a DUNA PLÁZA közelében, 51 lakásos, liftes, téglaépítésű társasházban 1. emeleti, 51m2 alapterületű, 2 szobás, galériázott lakás ELADÓ.

A 2 emeletes 51 lakásos, liftes, téglaépítésű társasház a századfordulón épült, melynek teljes átépítése, felújítása történt és kapta meg jelenlegi arculatát. A fűtésről, meleg víz ellátásról elektromos cirkó gondoskodik és hűtő-fűtő klíma is beszerelésre került. A garzonlakások belmagassága 3,7méter, mely lehetővé tette fekvőgaléria kialakítását.
Konyhabútorral kerül átadásra, burkolatok szabadon választhatók.

Átadás: 2025. II. negyedév

Az épület nyugalmáról és biztonságáról 24 órás portaszolgálat gondoskodik. A társasház udvara pihenő parkként használható. Gépjárművek parkolására a ház előtti kialakított parkolóban van lehetőség.

A folyamatosan fejlődő városrészben a lokáció és a közlekedés kiváló. Több buszjárat és a M3 metró néhány percen belül gyalogosan elérhető. Közelben a Duna Pláza, Tesco áruház, több pékség, játszótér, étterem található.

Ajánlom azoknak, akik otthont keresnek jó közlekedéssel, befektetőknek pedig a kiváló elhelyezkedés és értékállósága miatt.

Hívjon bizalommal, ha az ajánlat felkeltette érdeklődését.
Bajnóczi Beáta
GDN Region Ingatlan

Rufen Sie mich zurück

Ähnliche Immobilien

Bajnóczi Beáta

Bajnóczi Beáta
Inserent

Rufen Sie uns mit Vertrauen

+36-70-489- Zeig!

Andere eigene Anzeigen