Miete Wohnung (Ziegel) Budapest, XIII. kerület - Bulcsú utca

Miete Budapest, XIII. kerület Wohnung (Ziegel)
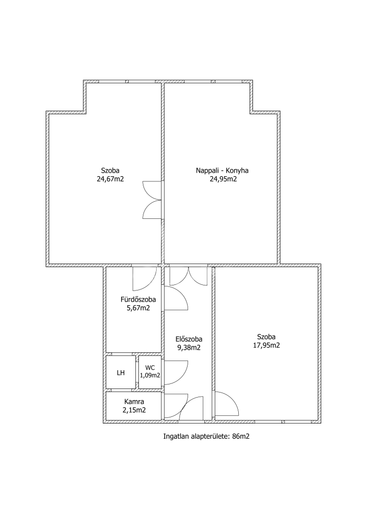
86 m2Wohnfläche 3 Zimmer
390 000 HUF /Monat Kaufpreis
393493ID nummer
Weitere Informationen

Straße Ansicht

In gutem Zustand Zustand

Tégla Struktur

Gas (Konvektor) Heizung

Komfort Komfort

Auf Gemeindeflächen Parkplatz

Etage 2

Es gibt Aufzug

Haustiere Nein

Ausgezeichnet Öffentliche Verkehrsmittel

Amerikanische Küche

Es gibt nicht Zugang zum garten

1930 Baujahr

Gemeinsame Gebühren 33 000 HUF

Südwesten Orientierung

Azonnal költözhető, 3 szobás lakás a Lehel téri piacnál – kiváló közlekedéssel, hosszú távra kiadó, egyetemistáknak és cégeknek is ideális


Budapest egyik frekventált részén, a Bulcsú utcában, közvetlenül a Lehel téri piac szomszédságában, kiadó egy jó állapotú, téglaépítésű társasház második emeletén található, 86 m²-es, világos lakás.
Az ingatlan három külön nyíló szobával rendelkezik, így ideális választás lehet családoknak, baráti társaságoknak vagy egyetemistáknak is.

A lakás elrendezése tágas és praktikus, a nagy ablakoknak köszönhetően napfényes és kellemes hangulatú.
A konyha teljesen felszerelt és gépesített, a fürdőszoba berendezése szintén rendelkezésre áll, így az ingatlan azonnal költözhető állapotban várja új bérlőit. A lakás bútorozott, ezért külön berendezésre nincs szükség.
Az ablakok utcai kilátással rendelkeznek, a környék pezsgő, városi hangulatú, miközben minden fontos szolgáltatás karnyújtásnyira található.

Kiváló lokáció és közlekedés
A lakás egyik legnagyobb előnye az elhelyezkedése: a Lehel téri piac közvetlen közelében található, ahol bevásárlási lehetőségek, üzletek, éttermek és szolgáltatások széles választéka elérhető.

A közlekedés kiemelkedően jó:
• M3 metró néhány perc sétára
• több villamos- és buszjárat a közelben
• gyors elérés a belváros és az egyetemek felé

Bérleti feltételek
Bérleti díj: 390.000 Ft / hó + rezsi
Kaució: 2 havi kaució

A lakás munkáltatói igazolással, határozatlan idejű munkaszerződéssel, valamint közjegyzői bérleti szerződéssel bérelhető.
A közjegyzői szerződés költsége a bérlőt terheli.


✨ Az ingatlan kiváló elhelyezkedése, tágas terei és azonnali költözhetősége miatt ritka lehetőség a környéken – érdemes mielőbb megtekinteni!

Rufen Sie mich zurück

Vereb Attila

Vereb Attila
Inserent

Rufen Sie uns mit Vertrauen

+36-20-263- Zeig!

Andere eigene Anzeigen