For sale Apartment (Sliding shutter) Budapest, II. kerület - Margit utca

For sale Budapest, II. kerület Apartment (Sliding shutter)
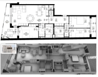
138 m2Space 4 Rooms
450 000 000 HUF Price
378262ID number
Other data

Street View

Newly built Condition

Csúsztatott zsalu Structure

26 m2 Balcony/terrace

Heat pump Heating

Full comfort Comfort

Garage/parking space buy Parking

Floor 2

Exist Elevator

Excellent Public transport

American kitchen

No exist Access to the garden

2024 Year of construction

South Orientation

Eladó új építésű okos otthon Budapest szívében a 2. kerületben, közel a Margit hídhoz!

Ez a modern, 138 m²-es lakás ideális választás mindazok számára, akik a kényelmet a stílust és a praktikusságot keresik egy prémium környezetben.

Főbb jellemzők:

✅Új építésű, 5 lakásos ház 2. emeletén
✅Tágas, világos amerikai konyhás nappali és 3 hálószoba
✅2 fürdőszoba a maximális kényelem érdekében
✅Két terasz összesen 26 m² a kültéri pihenésre és szórakozásra
✅Okos otthon rendszer, amely lehetővé teszi a teljes kontrollt az otthona felett
✅Hőszivattyús rendszer, plafon- és padlófűtés a hatékony és kényelmes fűtésért
✅Közös, csendes kert, medencével – tökéletes hely a pihenésre
✅Teremgarázs vásárlási lehetőség
✅Kiváló elhelyezkedés:

Mindössze pár perc sétára a Margit-szigettől a Komjádi Uszodától, valamint a Lukács Fürdőtől.
Közvetlen közelben iskolák, kórház, posta, templom a Mammut bevásárlóközpont, piac, és minden, amire szüksége lehet.
Kiváló közlekedési lehetőségek, így bárhova gyorsan elér!

A lakás kiválóan átgondolt, ha Budapest belső kerületeiben keres egy kényelmes otthont ez az ingatlan minden részletében tökéletes.

Hívjon és nézze meg személyesen!

Call me back

Similar properties

Balogh Zsuzsa

Balogh Zsuzsa
Advertiser

Call me with confidence

+36-20-800-Show!

Other listings