For sale Flat (brick) Budapest, VII. kerület - Ligetváros

For sale Budapest, VII. kerület Flat (brick)
46 m2Space 2 Rooms
69 900 000 HUF Price
393308ID number
Other data

Courtyard View

Reconditioned Condition

Brick Structure

Electric Heating

Full comfort Comfort

At community areas Parking

Floor 2

Exist Elevator

Excellent Public transport

American kitchen

No exist Access to the garden

1950 Year of construction

Common cost 15 000 HUF

Modern igényesen felújított lakás eladó!

Két lakássá alakított ingatlan " B" jelű lakását kínáljuk megvételre a Damjanich utca kedvelt részén, liftes ház 2. emeletén.

Az ingatlan teljeskörűen felújított, minőségi bútorokkal és gépekkel berendezett, minden részletét gondosan megtervezték.
A lakás világos, tágas érzetet nyújt, minden helyiségén ablak van.
Használati megosztással kerül értékesítésre.

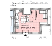
" B"- lakás rendkívül jó beosztású, hasznos alapterülete 46 nm.
- alapterület 27 nm.
- beosztása:
- előtér,
- konyha + étkező + nappali,
- fürdőszoba +WC,

- teljesértékű galéria 19 nm.
- beosztása:
- hálószoba,
Ebben a lakásban elektromos padlófűtés van + 1 db hűtő-fűtő klíma.

A fűtés, villanybojler, redőnyök, lámpák, mosógép távolról vezérelhető.
A konyhák gépesítettek.
A lakás külön mérőórákkal rendelkezik.

Az ingatlan befektetésnek is kíváló, könnyen kiadható az Állatorvosi Egyetem és a turisztikai látványosságok közelsége miatt.
A környék rendkívül kedvelt, a Városliget, a Hősök tere és az Andrássy út néhány perc sétával elérhető.

Amivel segítjük az Ön ingatlanvásárlását:
- ingyenes hitelügyintézés,
- jogi háttér,
- földhivatali ügyintézés,
- energetikai tanúsítvány,
- a vevő számára az ingatlanközvetítés ingyenes.

Irodánk 30 éves szakmai tapasztalattal áll ügyfelei rendelkezésére!

Várom szíves megkeresését!

Call me back

Similar properties

Göbölyös Judit

Göbölyös Judit
Advertiser

Call me with confidence

+36-70-269-Show!

Other listings