Eladó Családi ház Budapest, III. kerület - Tamás utca

Eladó Budapest, III. kerület Családi ház
236 m2Alapterület 5 Szoba
344 000 000 Ft Ár
360905Azonosító
További adatok

553 m2 Telek

Kertre néző Kilátás

Felújított Állapot

Tégla Szerkezet

30 m2 Erkély/terasz

Gáz (cirkó) Fűtés

Luxus Komfort

Saját garázs Parkolás

Tömegközlekedés

Amerikai konyhás

Van Kertkapcsolat

2010 Építés éve

Délkeleti Tájolás

Ide csak a bőröndöt kell behúzni!!!

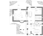
III. kerület, Békásmegyer Ófalu a Róka hegy aljában kínálom eladásra ezt a kényelmes minden igényt kielégítő luxus családi házat.

3 szintes, pincében, szauna, fürdő szoba, úszómedence, mosókonyha, 2 nagy tároló, beépített gardrób szekrények.
Földszint: Előtér, dolgozó szoba, amit ha igény van rá csak át kell rendezni és akár egy vendég szoba lehet, nappali, fa tüzelésű kandallóval, nagy konyha, étkezővel, fürdő szoba.
Emelet: 3 külön nyíló szoba, fürdő szoba, előtér, beépített gardrób.

Javaslom jöjjön nézze meg, nem fog csalódni.

Az ár irány ár!

Visszahívást kérek

Hasonló ingatlanok

Keressen bennünket

Makó Nelly

Makó Nelly

Hívjon bizalommal

+36-70-367-Mutasd!

További hirdetéseim