Eladó Családi ház Budapest, XXII. kerület - FELÚJÍTOTT CSALÁDI HÁZ BUDAFOKON!

Eladó Budapest, XXII. kerület Családi ház
214 m2Alapterület 5 Szoba
149 000 000 Ft Ár
390458Azonosító
További adatok

647 m2 Telek

Kertre néző Kilátás

Felújított Állapot

Vegyes falazat Szerkezet

Hőszivattyú Fűtés

Dupla komfort Komfort

Saját beálló Parkolás

Tömegközlekedés

Nem Amerikai konyhás

Van Kertkapcsolat

1968 Építés éve

CSAK AZ IRODÁNK KÍNÁLATÁBAN!

XXII. kerületben, Budafokon kínálunk eladásra egy FELÚJÍTÁS ALATT ÁLLÓ, nagy nappali + 4 szobás, 2 fürdőszobás, étkező-konyhás 214 m²-es lakóterű magasföldszinti CSALÁDI HÁZAT, melynek az alsó szintje plusz 110 m2, amely egy 647 m²-es telken helyezkedik el.

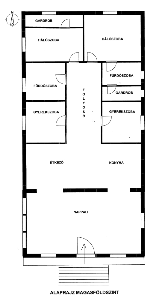
A házba belépve egy tágas nappaliba érkezünk, innen tovább haladva található egy étkezős - konyha, beépített modern konyhabútorral.
Széles folyosóról nyílnak a gyerek szobák, a nagy kádas fürdőszoba, és két nagy méretű hálószoba saját gardrób helyiségekkel.

Az egyik hálószobához tartozik még egy zuhanyozós fürdőszoba WC-vel és egy gardrob szoba.
A másik hálószobához is tartozik külön gardrob szoba.

A ház alatti alsó szint 110 m2, ahol beépített konyha, kamra, kis szoba, zuhanyzós fürdőszoba WC-vel is kialakításra került, plusz egyéb tárolásra alkalmas terület is maradt.

LÁSD AZ ALSÓ SZINT ALAPRAJZÁT !

A ház ideális nagycsaládosoknak, de két generációnak is kényelmes tereket biztosít, a 214 m²-es lakótér, és az alsó szint helyiségei.

LÁSD A LAKÓTÉR /magasföldszint/ HELYISÉGEINEK ELRENDEZÉSÉT AZ ALAPRAJZON !

MŰSZAKI JELLEMZŐK:
- Az épület az 1960-1970-es években épült vegyes falazattal.
- 2024-2025-ben teljes körű felújításon esett át.
- ennek részeként megtörtént a tetőcsere, vasbeton födém került kialakításra
- a teljes gépészet és fűtésrendszer megújult
- a nyílászárók cseréje is megtörtént, háromrétegű, hő- és hangszigetelő műanyag ablakok, új bejárati ajtó került beépítésre
- a ház külső falaira 15 cm-es dryvit hőszigetelés került
- a fűtés hőszivattyúval történik, minden helyiségben padlófűtéssel.

PARKOLÁS:
A kertben több autó számára térkövezett felszíni beálló biztosított.

EXTRÁK:
A házban 5 db hűtő-fűtő klíma található.

KÖRNYEZET:
Az ingatlan csendes, kertvárosias környezetben található, kiváló tömegközlekedéssel és közeli bevásárlási lehetőségekkel (ALDI, Campona, Tesco).
A közelben óvoda, két tannyelvű iskola és gimnázium is működik..
Autóbusszal 15–20 perc alatt elérhető a 4-es metró kelenföldi végállomása. Budapest belvárosa pedig sétatávolságban lévő buszjáratokkal fél óra alatt megközelíthető.

Az ingatlan ELŐRE EGYEZTETETT IDŐPONTBAN tekinthető meg – akár hétvégén is.

KÉSZPÉNZES ÉRDEKLŐDŐK JELENTKEZÉSÉT VÁROM !

FORDULJON HOZZÁM BIZALOMMAL, VÁROM HÍVÁSÁT, ÉRDEKLŐDÉSÉT!
(G.I.)

Visszahívást kérek

Hasonló ingatlanok

Keressen bennünket

Gál Ildikó

Gál Ildikó

Hívjon bizalommal

+36-30-268-Mutasd!

További hirdetéseim