Eladó Fejlesztési terület Budapest, XIV. kerület - Vezér utca

Eladó Budapest, XIV. kerület Fejlesztési terület
480 m2Alapterület 0 Szoba
230 000 000 Ft Ár
368921Azonosító
További adatok

Kertre néző Kilátás

Kiváló Tömegközlekedés

*** Befektetők részére kitűnő választás a XIV. kerületben, a Vezér utcában ***

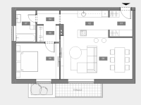
A beépíthető nettó hasznos -eladható- terület 480 nm, 2 szinten.
A bruttó beépíthető terület 435 nm + bruttó 190 nm-es már meglévő belső kétszintes lakás.

A már meglévő felújított lakás Zugló központi részén, egy már meglévő, de részben átalakítandó 3 szobás, amerikai konyha + nappalis, dupla komfortos, 1. emeleti, belső 2 szintes, erkélyes lakás, és a hozzá tartozó beépíthető tetőtér eladó. Az ingatlan egy 1 emeletes 10 lakásos társasházban található.

Az ingatlanra 2 emelet építhető, amelyre érvényes Tervtanácsi jóváhagyás is rendelkezésre áll, így a meglévő lakás átalakításával 1+4 lakás azaz összesen 5 lakás kialakítására van lehetőség, ebből egy belső kétszintes és további 4 lakás kialakítására van lehetőség. Erre kész koncepciós terv áll rendelkezésre, de bármilyen más lehetőség is megvalósítható. A mostani koncepciós terv alapján napelem rendszerrel segíthető az energiafelhasználás.
Az ingatlan besorolása: LK-2/10

A lakás és a hozzá tartozó tetőteret kizárólag egyben kívánom eladni!

A kialakítandó lakások mindegyike terasz/teraszokkal rendelkezik, a lakások nagysága a tervek szerint a következő képen kivitelezhető (a mostani koncepciós tervek alapján):
1. lakás: belső kétszinten 94 nm-es + 8,33 nm terasz, 2 szoba + nappalis,
2. lakás 'A terv ' alapján: 63,36 nm-es + 13,97 nm terasz, 2 szoba + nappalis,
3. lakás: 'A terv' alapján: 62,91 nm-es + 5,39 nm terasz, 1 szoba + nappalis.

2. lakás: 'B terv' alapján: 49,68 nm-es +13,97 nm terasz, 1 szoba + nappalis,
3. lakás: 'B terv' alapján: 78,94 nm-es + 13,97 nm terasz, 2 szoba + nappalis,
4. lakás: 48,13 nm-es + 6,3 nm terasz, 1 szoba + nappalis,
5. lakás: penthouse jellegű: 128,64 nm-es + 12,07 nm loggia + 39,88 nm tetőterasz + (80 nm zöld terasz), 4 szoba + nappalis+ dupla fürdőszobás.

Közlekedés: 82-es troli megállója a ház előtt, 77-es troli pár perc sétára, Örs vezér tér 5 perc autóval, séta távolságra Tesco, Lidl, Spar, éjjelnappali.

BGE és Metropolitan egyetemek a közelben.

A Paskál strand és gyógyfürdő 2 perc séta távolságra helyezkedik el.

Ház előtt zöld terület és kerékpár út fut, a Rákos-patak partján mindkét oldalon 1 éve kialakított futópálya és pihenőpark, közösségi sportpálya található.

K.A

Visszahívást kérek

Keressen bennünket

Pető Balázs

Pető Balázs

Hívjon bizalommal

+36-70-313-Mutasd!

További hirdetéseim