Eladó Lakás (csúsztatott zsalu) Budapest, IX. kerület - Vágóhíd utca

Eladó Budapest, IX. kerület Lakás (csúsztatott zsalu)
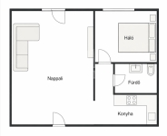
51 m2Alapterület 2 Szoba
69 900 000 Ft Ár
395125Azonosító
További adatok

Utcai Kilátás

Felújított Állapot

Csúsztatott zsalu Szerkezet

4 m2 Erkély/terasz

Gáz (cirkó) Fűtés

Összkomfort Komfort

Utcán, közterületen Parkolás

Emelet Magasföldszint

Nincs Lift

Tömegközlekedés

Nem Amerikai konyhás

Nincs Kertkapcsolat

1980 Építés éve

Közös költség 13 000 Ft

Mester utca – Haller park közelében, 51 nm-es, 2 szobás, felújított, magasföldszinti, erkélyes, csúsztatott zsalus lakás eladó – befektetésnek és saját célra is ideális! OTTHON START – FIX 3% hitelre alkalmas!
Világos, csendes lakás park közeli, zöld környezetben
2 külön nyíló szoba – praktikus elosztás
Délnyugati tájolás – napfényes terek
4 m²-es erkély
Magasföldszint, rendezett, 4 szintes, csúsztatott zsalus épület
Teljes körűen felújított állapot
Hőszigetelt nyílászárók
❄️Hűtő-fűtő klíma
Gázkazános fűtés – alacsony fenntartás
Közös költség: 13.000 Ft
Rezsi: kb. 25.000 Ft
Saját pince tartozik hozzá
Elektromos redőnyök
Erkélyes, park közeli hangulat
Lokáció:
Haller park pár perc sétára
Lurdy Ház, boltok, szolgáltatások a közelben
SOTE a közelben
Közlekedés:
2B, 23, 24 villamos pár perc sétára (Mester utca / Ferenc körút)
54, 55 buszok a közelben
M3 metró (Nagyvárad tér) kb. 10-15 perc alatt elérhető
Gyors kapcsolat a belváros felé – Deák Ferenc tér ~20-25 perc
Befektetésnek is kiváló:
Megbízható bérlővel, azonnali bevétel
Igény szerint bútorozva, bérlővel együtt is átvehető

Visszahívást kérek

Hasonló ingatlanok

Keressen bennünket

Somogyi Nikoletta

Somogyi Nikoletta

Hívjon bizalommal

+36-70-605-Mutasd!

További hirdetéseim