Eladó Lakás (panel) Budapest, XIX. kerület - Zrínyi utca

Eladó Budapest, XIX. kerület Lakás (panel)
53 m2Alapterület 1 + 2 Szoba
66 900 000 Ft Ár
394595Azonosító
További adatok

Kertre néző Kilátás

Felújított Állapot

Panel Szerkezet

Távfűtés Fűtés

Összkomfort Komfort

Utcán, közterületen Parkolás

Emelet 6

Van Lift

Tömegközlekedés

Nem Amerikai konyhás

Nincs Kertkapcsolat

1980 Építés éve

Közös költség 20 500 Ft

Első lakás a XIX. kerületben – ideális választás az Otthon Start Programhoz

Megvételre kínálok a XIX. kerületben, a Zrínyi utcában egy 53 m²-es, 2 + 1 félszobás, tehermentes panellakást. Az ingatlan azonnal költözhető állapotban van, így kiváló lehetőség első lakást keresőknek vagy fiatal pároknak.

A lakás egy 10 emeletes, liftes, rendezett társasház 6. emeletén található. A környék csendes, parkos, mégis jól megközelíthető, így ideális választás azok számára, akik nyugodt, de városi környezetben szeretnének élni.

Elrendezés – jól alakítható terek
A 2 + 1 félszobás kialakítás rugalmasan alkalmazkodik az élethelyzethez:

a nappali tágas közösségi térként funkcionál,
a félszoba kényelmes hálószobának ideális,
a harmadik szoba használható dolgozószobának, gyerekszobának vagy gardróbnak.

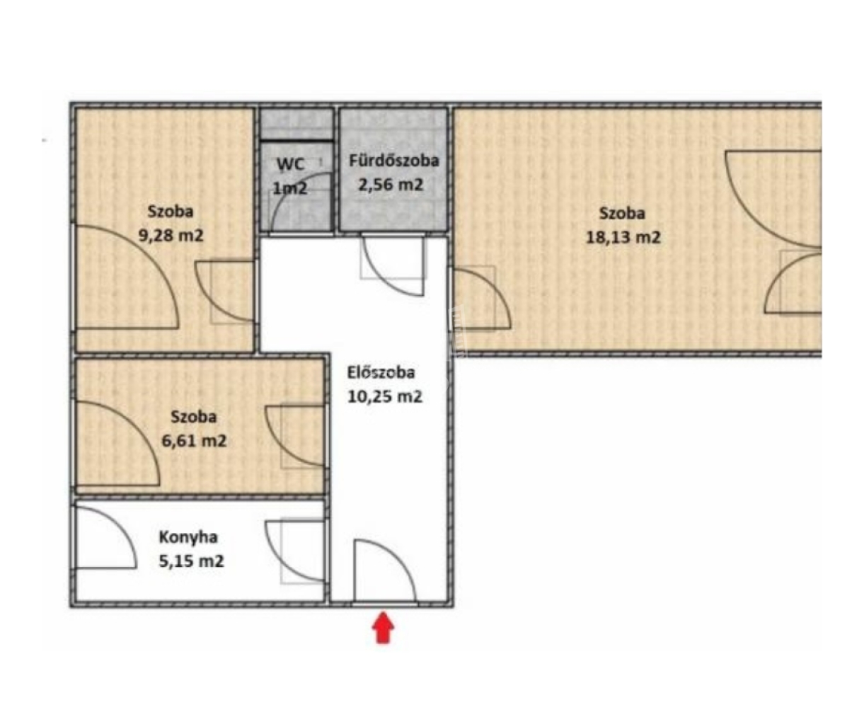
Helyiségek:

előszoba (5,8 m²)
konyha
közlekedő (4,1 m²)
külön fürdőszoba és WC
hálószoba (9,3 m²)
nappali (18,3 m²)

Műszaki állapot
Az ingatlan az elmúlt években több felújításon esett át:

2022-ben műanyag, több rétegű üvegezésű nyílászárók kerültek beépítésre,
szintén 2022-ben megtörtént a hidegburkolatok cseréje a folyosón, konyhában, fürdőben és WC-ben,
új radiátorok biztosítják az egyenletes hőleadást,
a nappaliban hűtő-fűtő klíma található,
2025 novemberében tisztasági festés történt.

A lakás azonnali felújítás nélkül birtokba vehető.

Költségek és finanszírozás
A közös költség 20.500 Ft/hó, amely tartalmazza a takarítást, a felújítási alapot és a lift felújításának törlesztését is.
Az ingatlan tehermentes, banki hitellel is megvásárolható.

Környék és ellátottság
A közelben minden fontos szolgáltatás elérhető: bevásárlási lehetőségek, gyógyszertár, orvosi rendelő, oktatási intézmények, valamint sportolási és kikapcsolódási lehetőségek.

Közlekedés

3 perc sétára az 50-es villamos, amely kapcsolatot biztosít a Határ úti M3-as metróhoz,
3 perc sétára több buszjárat (93, 93A, 136),
a belváros, Deák Ferenc tér körülbelül 36 perc alatt elérhető,
a parkolás a környéken díjmentes.

Sport és kikapcsolódás
A közelben új konditerem található, valamint az utca végén reformer pilates stúdió is elérhető.

Ez a lakás kiváló választás mindazok számára, akik egy jól elrendezett, azonnal költözhető otthont keresnek jó közlekedéssel és teljes infrastruktúrával rendelkező környezetben.

Visszahívást kérek

Hasonló ingatlanok

Keressen bennünket

Nyári Katalin

Nyári Katalin

Hívjon bizalommal

+36-30-720-Mutasd!

További hirdetéseim