Eladó Lakás (téglaépítésű) Budapest, I. kerület - Hunyadi János út

Eladó Budapest, I. kerület Lakás (téglaépítésű)
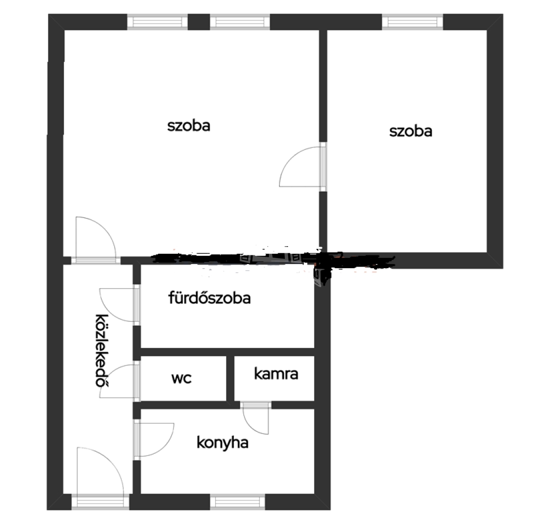
65 m2Alapterület 2 Szoba
87 000 000 Ft Ár
393574Azonosító
További adatok

Utcai Kilátás

Felújítandó Állapot

Tégla Szerkezet

Gáz (cirkó) Fűtés

Összkomfort Komfort

Utcán, közterületen Parkolás

Emelet Földszint

Van Lift

Kiváló Tömegközlekedés

Nem Amerikai konyhás

Nincs Kertkapcsolat

1926 Építés éve

Közös költség 16 130 Ft

Nyugati Tájolás

Lánchídi alagút közelében, a Várkert bazár szomszédságában eladó egy 2 szobás, 65 m2-es lakás!

Csodás környezet a város szívében.

A ház jól karbantartott.
A lakás felújítandó.
Fűtés cirkóval megoldott.
Van egy cserépkályha is bélelt kéménnyel.
Falai 1 m vastagok.

Kilépve a házból pár lépés után a Parlament és az egész pesti oldal látható.

A közlekedés kíváló.

Lehet, hogy erre várt? Szeressen bele és szépítse kedvére!

Visszahívást kérek

Hasonló ingatlanok

Keressen bennünket

Figlerné Halmágyi Pálma

Figlerné Halmágyi Pálma

Hívjon bizalommal

+36-30-555-Mutasd!

További hirdetéseim