Eladó Lakás (téglaépítésű) Budapest, IV. kerület - Újpest kertváros

Eladó Budapest, IV. kerület Lakás (téglaépítésű)
81 m2Alapterület 3 Szoba
129 800 000 Ft Ár
389558Azonosító
További adatok

265 m2 Telek

Kertre néző Kilátás

Felújított Állapot

Tégla Szerkezet

Gáz (cirkó) Fűtés

Összkomfort Komfort

Utcán, közterületen Parkolás

Emelet 1

Legfelső emelet

Nincs Lift

Tömegközlekedés

Amerikai konyhás

Van Kertkapcsolat

Tetőtéri ingatlan

2017 Építés éve

Északkeleti Tájolás

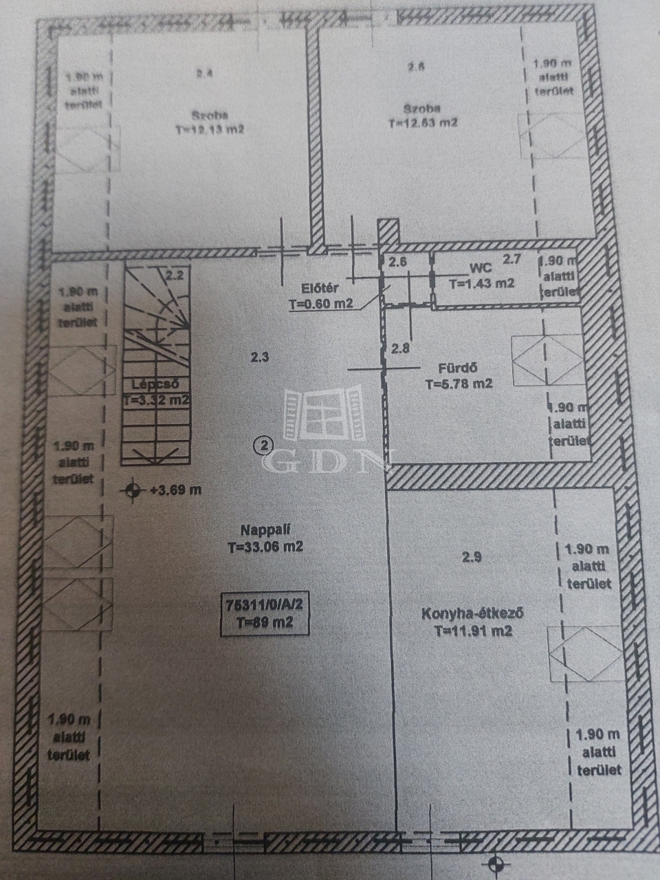
Újpest kertvárosi részén 81 nm hasznos alapterületű (bruttó 106 nm) jó állapotú tetőtéri tégla lakás eladó.

A lakás egy 2 szintes, 2 lakásos jogilag társasházzá alakított (alapító okirattal rendelkező) családi ház 2017-ben kialakított felső szintjén található, külön helyrajzi számmal, külön mérőórákkal és egy 539 nm-es osztatlan közös tulajdonú kerttel.

Az ingatlan az alábbi helyiségekből áll:
Tágas amerikai konyhás nappali étkezővel, beépített konyhai gépekkel: 45 nm
Szoba: 12,13 nm
Szoba: 12,53 nm
Fürdőszoba: 5,78 nm
WC: 1,43 nm
Előtér 7,9 nm

Fűtés / meleg víz: kombi gáz kazán (cirkó)

Az ingatlan közlekedés és infrastruktúra szempontjából kiváló adottságokkal rendelkezik, Újpest központ (Metró) pár perc tömegközlekedéssel, vagy gépkocsival.

Az épület földszintjén lévő lakás szintén eladó!
A fszt - i lakás adatai:
Alapterület 71 nm + 10 nm terasz + 9,27 pince + 27 nm garázs / tároló + 539 nm kert osztatlan közös tulajdonban.
Ára 95 000 000.-Ft.

Hitelre vásárló ügyfeleinknek teljeskörű, ingyenes, bank semleges ügyintézéssel állunk rendelkezésére. Irodánk ügyvédje pedig kedvező díjszabással vállalja az adásvételi szerződés elkészítését.
Amennyiben még el kell adnia ingatlanát, kérem, tiszteljen meg bizalmával és kérje, nagy tapasztalattal rendelkező, az aktuális árakkal tisztában lévő, irodánk ajánlatát.

P.B.

Visszahívást kérek

Hasonló ingatlanok

Keressen bennünket

Pető Balázs

Pető Balázs

Hívjon bizalommal

+36-70-313-Mutasd!

További hirdetéseim