Eladó Lakás (téglaépítésű) Budapest, VI. kerület - Szondi utca

Eladó Budapest, VI. kerület Lakás (téglaépítésű)
71 m2Alapterület 2 + 1 Szoba
109 900 000 Ft Ár
388136Azonosító
További adatok

Utcai Kilátás

Jó állapotú Állapot

Tégla Szerkezet

Gáz (cirkó) Fűtés

Komfort Komfort

Utcán, közterületen Parkolás

Emelet 2

Van Lift

Tömegközlekedés

Nem Amerikai konyhás

Nincs Kertkapcsolat

1950 Építés éve

Délnyugati Tájolás

Diplomatanegyed szívében – világos, különnyíló szobás lakás eladó liftes házban.

Elhelyezkedés: Diplomatanegyed, frekventált környék.

Emelet: 2. emelet (liftes ház).

Szobák: 2 + ½ .

Fűtés: gáz cirkó.

Állapot: jó állapotú.

Közművek: minden mért fogyasztás alapján fizetendő.

Ez a napfényes, kiváló elrendezésű lakás Budapest egyik legpatinásabb városrészében, a Diplomatanegyed frekventált, mégis kellemesen élhető részén található.

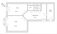
A 23 m²-es nappali gyönyörű félköríves panorámaablakával különleges atmoszférát teremt, amely ritkaságszámba megy ezen a környéken. A nappali mellett két külön nyíló hálószoba, kádas fürdőszoba, külön WC, konyha, kamra, étkező, valamint előszoba teszik teljessé a praktikus alaprajzot.

A lakás a 2. emeleten található, egy liftes, rendezett társasházban, így idősek és családok számára is kényelmes választás.


Kiváló elhelyezkedés és infrastruktúra
Oktogon, Hősök tere, Városliget és az Állatkert rövid sétatávolságra

Közelben boltok, cukrászdák, iskolák, óvodák, bölcsődék

Kiváló tömegközlekedés:

72-es és 75-ös troli

5-ös busz

kisföldalatti (M1)


Kinek ajánlom?
Akik klasszikus városi miliőt keresnek kiváló közlekedéssel

Családoknak, akik szeretnének külön hálószobákat és praktikus elosztást

Befektetőknek, akik értékelik a belváros közelségét és a stabil bérbeadási lehetőséget

Visszahívást kérek

Hasonló ingatlanok

Keressen bennünket

Vargová Eva

Vargová Eva

Hívjon bizalommal

+36-70-427-Mutasd!

További hirdetéseim