Eladó Lakás (téglaépítésű) Budapest, XIV. kerület - Szugló utca

Eladó Budapest, XIV. kerület Lakás (téglaépítésű)
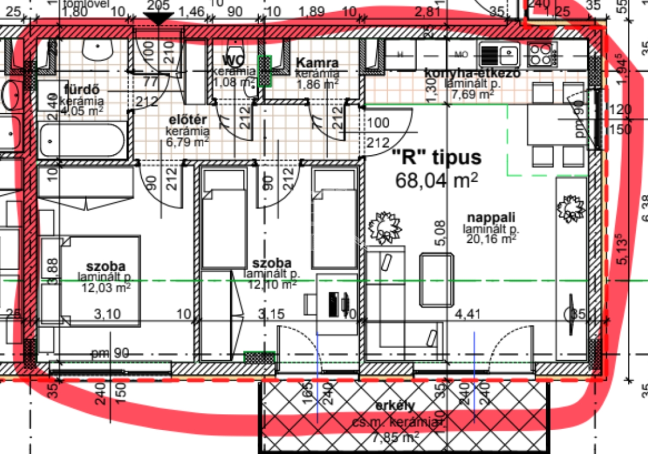
65 m2Alapterület 3 Szoba
118 000 000 Ft Ár
395373Azonosító
További adatok

Udvari Kilátás

Újszerű Állapot

Tégla Szerkezet

8 m2 Erkély/terasz

Házközponti egyedi mérővel Fűtés

Összkomfort Komfort

Garázs/beálló vásárolható Parkolás

Emelet 2

Van Lift

Kiváló Tömegközlekedés

Amerikai konyhás

Nincs Kertkapcsolat

2019 Építés éve

Közös költség 27 000 Ft

Eladó csendes, modern lakás Zugló központjában!

Zugló központi részén eladó egy újszerű, tégla építésű lakás egy rendezett társasház 2. emeletén. Az épület két lifttel rendelkezik, a lakás pedig a gondozott belső kertre néz, így rendkívül csendes és nyugodt környezetet biztosít.

A 65 m²-es lakótérhez egy 8 m²-es terasz tartozik. Az elrendezés praktikus és jól kihasználható: amerikai konyhás nappali, két külön nyíló szoba, zuhanyzós fürdőszoba, külön WC, valamint egy háztartási helyiség is rendelkezésre áll.

A lakás felszereltsége igényes: műanyag nyílászárók, redőnyök, szúnyoghálók és klíma biztosítják a kényelmet. A közművek egyedi mérés alapján működnek, a fűtést a társasház saját kazánja biztosítja.

A szobák parkettával burkoltak, míg a konyha, fürdőszoba, WC és közlekedő egységes, esztétikus kőburkolatot kapott. A beépített konyhabútor a vételár részét képezi.

A környék infrastruktúrája kiváló: Aldi, Lidl, óvoda, piac és játszótér mindössze 5–10 perc sétára található, a tömegközlekedés (villamos, troli, busz) pedig kb. 5 perc alatt elérhető.

A társasház lakóközössége kulturált és összetartó, az ingatlan jogilag rendezett.

Igény esetén a társasház mélygarázsában parkolóhely is vásárolható, amely nem része a vételárnak.

Ideális választás saját otthonnak vagy befektetésnek is!

Visszahívást kérek

Hasonló ingatlanok

Keressen bennünket

Babonics Renáta Szilvia

Babonics Renáta Szilvia

Hívjon bizalommal

+36-20-335-Mutasd!

További hirdetéseim