Eladó Lakás (téglaépítésű) Budapest, XX. kerület - Kende Kanuth utca

Eladó Budapest, XX. kerület Lakás (téglaépítésű)
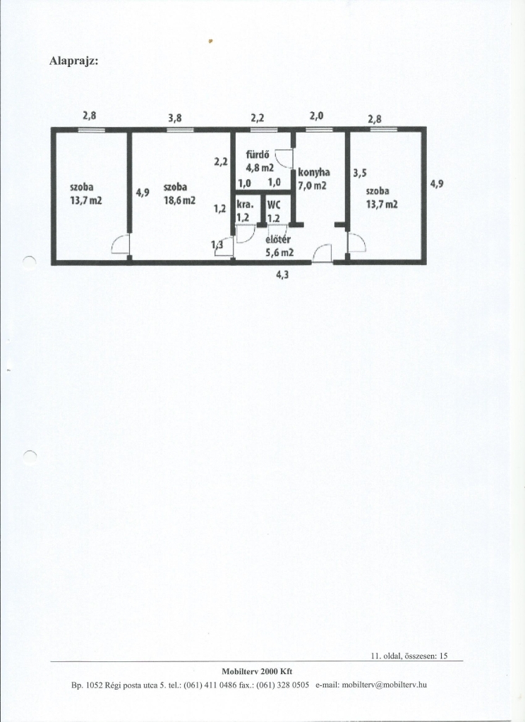
66 m2Alapterület 3 Szoba
74 990 000 Ft Ár
391263Azonosító
További adatok

Utcai Kilátás

Jó állapotú Állapot

Tégla Szerkezet

Gáz (konvektor) Fűtés

Összkomfort Komfort

Utcán, közterületen Parkolás

Emelet 2

Nincs Lift

Kiváló Tömegközlekedés

Nem Amerikai konyhás

Nincs Kertkapcsolat

1950 Építés éve

XX. kerület parkos környezetében, központi elhelyezkedés mellett, kis lakásszámú, rendezett társasház 2. emeletén eladásra kínálok, egy jó állapotú, 66 m2-es, 3 szobás, műanyag nyílászárókkal szerelt, klimatizált, per és tehermentes, azonnal költözhető lakást akár bútorozottan is!

A társasháztól sétatávolságra számos tömegközlekedési eszközt, üzletet és egyéb szolgáltatást találunk!

Az ingatlan megtekinthető a hét bármely napján!
Várom a hívását, akár hétvégén is!

B.Cs.

Visszahívást kérek

Hasonló ingatlanok

Keressen bennünket

Balogh Csaba

Balogh Csaba

Hívjon bizalommal

+36-20-310-Mutasd!

További hirdetéseim