Eladó Lakás (téglaépítésű) Budapest, XXII. kerület - Rózsavölgyi kertkapcsolatos lakás

Eladó Budapest, XXII. kerület Lakás (téglaépítésű)
144 m2Alapterület 3 Szoba
165 900 000 Ft Ár
386948Azonosító
További adatok

232 m2 Telek

Kertre néző Kilátás

Újszerű Állapot

Tégla Szerkezet

17 m2 Erkély/terasz

Gáz (cirkó) Fűtés

Összkomfort Komfort

Garázs/beálló vásárolható Parkolás

Emelet Földszint

Nincs Lift

Tömegközlekedés

Amerikai konyhás

Van Kertkapcsolat

2010 Építés éve

Délnyugati Tájolás

Prémium sorházi lakás saját kerttel Rózsavölgy zöldövezetében!
ÁRCSÖKKENÉS!

Eladó egy kivételes szélső sorházi lakás Budapest XXII. kerületében, Rózsavölgy legszebb részén, ahol a természet közelsége és a városi kényelem tökéletes egyensúlyban van. Ideális választás családoknak, akik nyugalomra vágynak, de fontos számukra a gyors belvárosi elérhetőség (15–20 perc).

Főbb jellemzők:
a lakás 144 m² világos és modern belső terek
Nappali + 2 hálószoba (akár 3 hálószobássá alakítható)
2 fürdőszoba + 3 WC
232 m² saját kert, több erkély és terasz
Teljesen gépesített, modern konyha
38m² tágas gardrób, mosókonyha, tároló, amely akár edzőtermi, wellness funkcióvá is alakítható
Saját önálló fűthető 16m2-es garázs vízkiállással és töltési lehetőséggel + udvari beálló
Kettő Klímaberendezés.
Alacsony fenntartási költségek.
A lakás irányára: 165,9 millió Ft
A garázs irányára: 10 millió Ft, amely a lakással együtt megvásárolandó!

Három szint beosztása:
Pince (54 m²): garázs, gardrób, mosókonyha, tároló
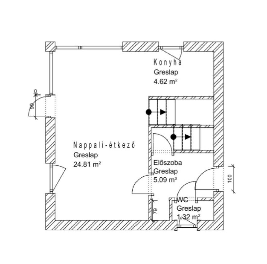
Földszint (41,5 m² + 8 m² terasz): nappali, külön WC
Emelet (41 m² + 9 m² erkély): 2 szoba, fürdőszoba (3 szoba könnyen kialakítható)

Környék:
Csendes, zöldövezeti elhelyezkedés, panorámás utca
Játszóterek, óvodák pár perc sétára
Savoya Park bevásárlóközpont a közelben
Kiváló közlekedés: belváros 15–20 perc alatt elérhető.

Képzeld el, hogy egy olyan otthonra bukkansz, ahol a madárcsicsergés az ébresztő, a kerted pedig saját kis birodalom. Ez az ingatlan ritka lehetőség Rózsavölgyben: tágas, modern, gazdaságos és családbarát. Ne maradjon le róla!

A környék infrastruktúrája kiváló, buszmegálló(251, 251A, 251E busz 8 perc gyalogos távolságban elérhető).

Az ingatlan megtekintése előre egyeztetett időpontban lehetséges, akár hétvégén is.
Amennyiben felkeltette az érdeklődését, további kérdéseivel kapcsolatban várom jelentkezését!
(J.D.)

Visszahívást kérek

Hasonló ingatlanok

Keressen bennünket

Juhász Dóra

Juhász Dóra

Hívjon bizalommal

+36-30-477-Mutasd!

További hirdetéseim