Eladó Sorház Budapest, XII. kerület - Méra utca

Eladó Budapest, XII. kerület Sorház
122 m2Alapterület 4 Szoba
159 600 000 Ft Ár
393665Azonosító
További adatok

35 m2 Telek

Panoráma Kilátás

Közepes Állapot

Panel Szerkezet

5 m2 Erkély/terasz

Gáz (cirkó) Fűtés

Összkomfort Komfort

Saját beálló Parkolás

Tömegközlekedés

Nem Amerikai konyhás

Van Kertkapcsolat

1980 Építés éve

Közös költség 15 000 Ft

Nyugati Tájolás

ELADÓ KÖZEPES ÁLLAPOTÚ SORHÁZ XII. KERÜLETBEN MÁRTONHEGYEN – PANORÁMA, KERT ÉS SOK TÁROLÁSI LEHETŐSÉG!

120 nm, 4 szoba, terasz + kert, 159.6 MFt.

Budán, a Mártonhegyen, csendes, zöld környezetben eladó egy 120 nm-es, háromszintes, kertkapcsolatos panel építésű sorház. A ház panorámás, világos, és a természet közelsége garantált, miközben a belváros 15–20 perc alatt elérhető autóval, vagy a 110-es és 112-es buszokkal.

A sorház része egy sorompóval védett lakóparknak, a kert, előkert és erkély különösen családbaráttá teszi az ingatlant. Az alsószint félszuterén része sokféle felhasználásra alkalmas: játszótér, wellness, edzőterem, vagy akár vendégszoba is kialakítható.

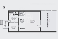
Elrendezés:
• Földszint: nappali, étkező, konyha, WC, előszoba, kamra + kertkapcsolat
• Felsőszint: két hálószoba, fürdő, panorámás erkély, beépített gardróbok
• Alsószint: mosókonyha, előtér, szoba („játszó- vagy wellness-rész”)
Főbb előnyök:
• Saját kert és előkert
• Panorámás erkély
• Világos, nagy ablakok
• Gardróbszekrények, sok tárolási lehetőség
• Lakható állapot, modernizálható
Közlekedés és infrastruktúra:
• Buszmegállók gyalogosan elérhetők
• MOM Park, Hegyvidéki Bevásárlóközpont közel
• Óvodák, iskolák, játszóterek a környéken
• Természetközeli helyszín: Normafa, Kis-Sváb-hegy

Parkolás: saját autóbeálló + közterületen kényelmes, nem fizetős parkolás.

Irányár: 159,6 millió Ft

Visszahívást kérek

Keressen bennünket

Dér Krisztina

Dér Krisztina

Hívjon bizalommal

+36-70-360-Mutasd!

További hirdetéseim