Eladó Üzlethelyiség Budapest, VI. kerület - Podmaniczky utca

Eladó Budapest, VI. kerület Üzlethelyiség
331 m2Alapterület 0 Szoba
199 900 000 Ft Ár
392423Azonosító
További adatok

Utcai Kilátás

Közepes Állapot

Tégla Szerkezet

Gáz (cirkó) Fűtés

Utcán, közterületen Parkolás

Kiváló Tömegközlekedés

1930 Építés éve

Közös költség 83 000 Ft

Délnyugati Tájolás

Budapest egyik legforgalmasabb üzleti csomópontján, a Nyugati pályaudvar közvetlen közelében kínálunk megvételre egy 331 m² összterületű, sokoldalúan hasznosítható üzleti ingatlant.

Négyzetméterár: ~601.000 Ft/m², amely a környék adottságaihoz és a kiemelkedő utcai megjelenéshez képest kifejezetten kedvező befektetési lehetőség.

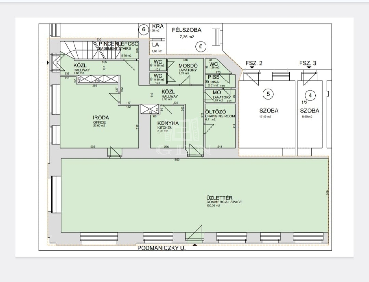
Területek megoszlása:

Földszint: 175 m²
Belső félemelet (galéria/tárgyaló): 41 m²
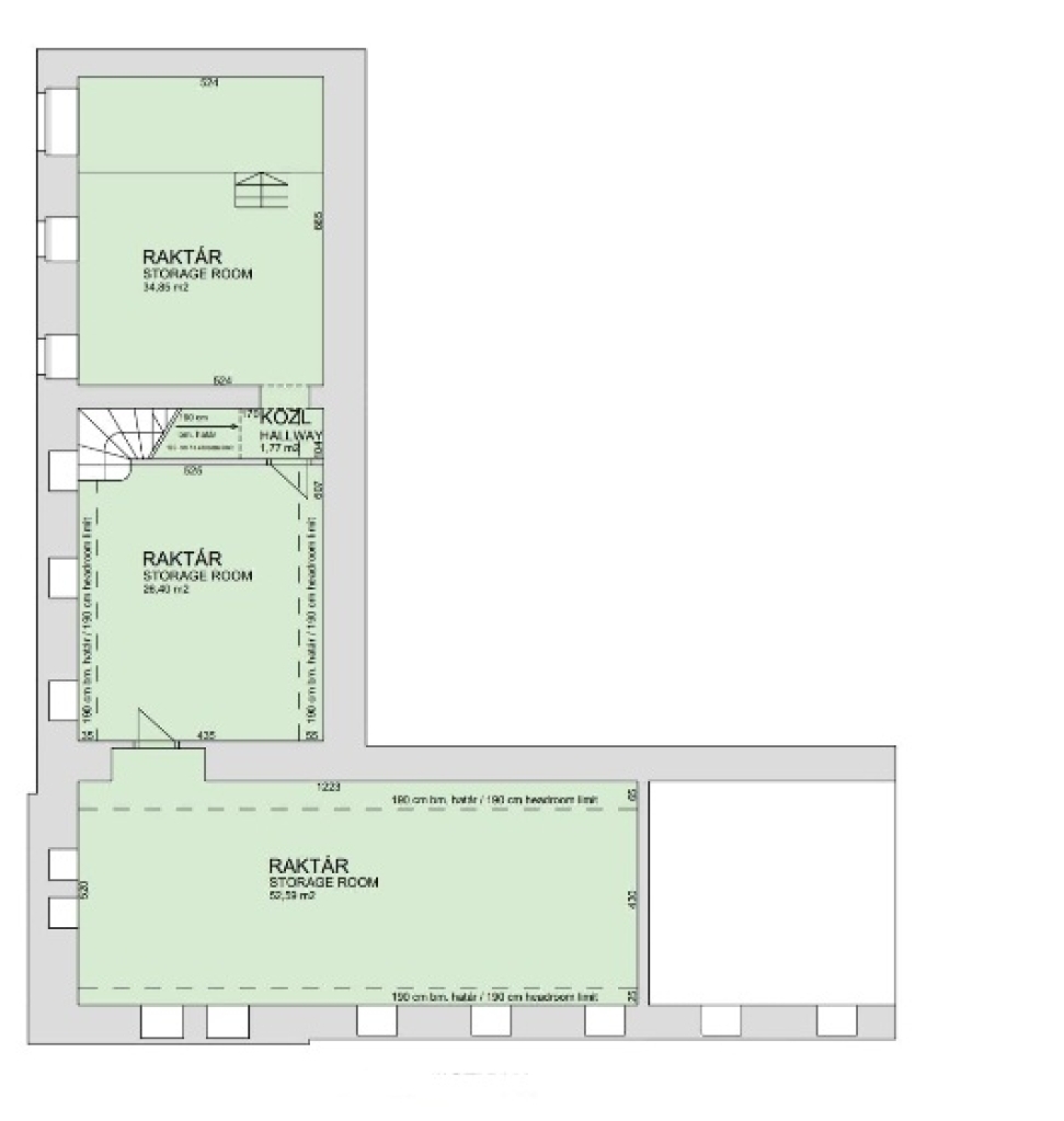
Alagsor (raktár, irattár): 115 m²
Összesen: 331 m²


Főbb jellemzők:

- Sarki elhelyezkedés, kiváló utcai jelenlét
- Két külön utcai bejárat
- Hét nagyméretű kirakati portál
- Több funkcióra bontható belső tér
- Nagy belmagasság, kiváló térérzet

Alkalmas lehet többek között:
üzlethelyiségnek, irodának, bankfióknak, cégképviseletnek, edzőteremnek, hostelnek, kulturális vagy tánctérnek, bemutatóteremnek.

Területek:

Földszint: 175 m² - reprezentatív, utcai kapcsolattal

Belső félemelet: 41 m² - téglaépítésű, teljes értékű galéria vagy tárgyaló, 2,2 m belmagassággal, akár önálló megközelítéssel

Alagsor: 115 m² - raktár- és irattárblokkok, utcai árucsúszdával

Műszaki és egyéb információk:

- Részben klimatizált
- Kiépített kamera- és riasztórendszer
- Saját vízóra
- Elektromos áram: 3 fázis, 3×32 A
- Közös költség: 83.000 Ft/hó
- A homlokzat 7–8 éve teljes felújításon esett át
- Rendezett társasház, stabil lakóközösség

Befektetők figyelmébe:
A környéken tervezett, állami szintű városfejlesztések – különösen a Nyugati pályaudvar átalakítása – jelentős hosszú távú értéknövekedési potenciált biztosítanak.

Az ingatlan az Andrássy út világörökségi helyszín védőövezetében helyezkedik el, Budapest műemlék jelentőségű területén található, tömegközlekedéssel is kiválóan megközelíthető.

Tulajdonjog és vásárlás:

Az ingatlan cég tulajdonában áll, megvásárolható céggel vagy cég nélkül is, az értékesítés ÁFA-mentes.

Megtekintés:
Rugalmasan, előzetes egyeztetést követően, akár hétvégén is.

Visszahívást kérek

Keressen bennünket

Nádaski Szabina

Nádaski Szabina

Hívjon bizalommal

+36-30-617-Mutasd!

További hirdetéseim