Vânzare Locuinta (caramida) Budapest, VI. kerület - Paulay Ede utca

Vânzare Budapest, VI. kerület Locuinta (caramida)
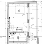
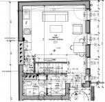
66 m2Suprafaţa 2 Camere
286 200 €
(~ 104 706 270 HUF) Preţ
282330Identificare
Mai multe detalii

Curte Vedere

Proprietate nouă Stare

Caramida Structură

11 m2 Balcon/Terasă

Gaz Încălzire

Dupla komfort Confort

Pe stradă, în loc public Parcare

Etaj 5

Ultimul etaj

Existent Lift

Excelent Transport public

Bucătarie deschisă

Inexistent Acces la grădină

2020 An construcție

Costuri comune 15 000 HUF

Est Orientare

Operaház közelében ajánljuk figyelmébe ezt az azonnal költözhető, két szobás, duplakomfortos, nagy erkélyes ingatlant. A lakás zártlépcsőházból nyílik. Elhelyezkedésének köszönhetően akár a hosszú távú bérbeadásra vonatkozó kilátások is kecsegtetőek . Az alsó szinten a konyha & nappali található 25m2-en, az emeleten pedig a 19m2-es hálószoba melyből a 11m2-es terasz is megközelíthető. A nappali mellett található fürdő zuhanykabinnal felszerelt a hálószoba melletti pedig káddal ellátott. A teljes lakás klimatizált. Az épület kis lakóközösségű, a beépítéssel párhuzamosan a homlokzatok felújításra kerültek és felvonó is beépítésre került.

Sună-mă

Proprietăți similare

Andrássy Róbert

Andrássy Róbert
Agent de publicitate

Contactează-mă!

+36-70-367-Arată

Mai multe anunțuri