Vânzare Locuinta (caramida) Budapest, VI. kerület - Király utca

Vânzare Budapest, VI. kerület Locuinta (caramida)
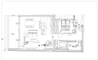
61 m2Suprafaţa 2 Camere
187 900 000 HUF Preţ
354689Identificare
Mai multe detalii

Vedere panoramică Vedere

Proprietate nouă Stare

Caramida Structură

11 m2 Balcon/Terasă

Pompă de căldură Încălzire

Confort 1 Confort

Garaj/ Parcare de inchiriat Parcare

Etaj 4

Ultimul etaj

Existent Lift

Excelent Transport public

Bucătarie deschisă

Inexistent Acces la grădină

Mansardă

2023 An construcție

Sud Orientare

Exkluzív kivitelű luxus apartman

A kubatúrába integrálódó zöld teraszok, tetőteraszok panorámája, modern építészeti térkapcsolatokkal és nagy üvegfelületekkel egyesül. Az így kialakult nyitott tágas és napfényes terek, tovább erősítik az ingatlanok egyediségét. Fontos cél, hogy a lakásokat belsőépítészeti vezetéssel, intelligens megoldásokkal alakítottuk ki. Kiemelt figyelmet fordítottunk az anyagok minőségére és a beépített technológiákra.


Legújabb nemzetközi trendeknek megfelelő belsőépítészet

•Modern igényeket kielégítő alaprajzi elrendezések
•Hatalmas ablakfelületek, lélegzetelállító panoráma
•Elegáns belsőépítészeti megoldások
•Magas minőségű hideg és meleg burkolatok
•Prémium csaptelepek és szaniterek
•Az otthon maximális intimitása biztosított


Csúcstechnológiájú gépészeti és Smart Home megoldások

A lakás hőellátását és hűtését teljesen megújuló energiaforrással, a külső levegő hőenergiájának felhasználásával terveztük, amelyet osztott „Split” rendszerű hőszivattyúval hasznosítunk hűtési, fűtési és használati melegvíz termelés célra. A hőszivattyúk elektromos ellátása GEO tarifás áram vételezéssel történik. Ezenkívül a lakás magas színvonalú Smart Home rendszerrel van felszerelve.


•Energiatakarékos és környezettudatos egyedi hőszivattyús okos hűtés/fűtés rendszer, távoli vezérléssel
•Zöld Energia felhasználási lehetőség GEO tarifa
•Smart Home rendszer
•Okos világítási rendszer, távoli vezérléssel
•Beépített riasztó rendszer, távoli vezérléssel
•Beépített árnyékolási technikák, elektromos redőnyök, zsaluziák, távoli vezérléssel
•3 rétegű, hő és hangszigetelő üvegezésű alumínium nyílászárók
•Tetőteraszon jakuzzi és kerti zuhany
•Szauna telepítési lehetőség
•Olasz konyhabútorok, legmodernebb konyhagépekkel
•Elektromosan működő bejárati ajtó, távoli vezérléssel

Az épületben AirBNB engedélyezett!!

Sună-mă

Proprietăți similare

Gombár Renáta

Gombár Renáta
Agent de publicitate

Contactează-mă!

+36-70-603-Arată

Mai multe anunțuri