Vânzare Locuinta (caramida) Budapest, XXIII. kerület - Kertvárosi körút (5ös)

Vânzare Budapest, XXIII. kerület Locuinta (caramida)
57 m2Suprafaţa 3 Camere
82 750 000 HUF Preţ
393277Identificare
Mai multe detalii

Curte Vedere

Proprietate nouă Stare

Caramida Structură

4 m2 Balcon/Terasă

Pompă de căldură Încălzire

Confort 1 Confort

Parcare proprie Parcare

Etaj 1

Inexistent Lift

Bun Transport public

Bucătarie deschisă

Inexistent Acces la grădină

2026 An construcție

Eladó egy új építésű, összesen 6 lakásból álló társasház valamennyi lakása.

Az ingatlan Soroksár új kertvárosi lakóparkjában, csendes, családbarát környezetben található, ahol a nyugodt életvitel és a jó városi elérhetőség harmonikusan találkozik.

A város zajától távol, mégis kiváló infrastruktúrával rendelkezik: üzletek, szolgáltatások és tömegközlekedés könnyen elérhetők.

A Soroksári kiserdő és a Duna közelsége különleges, természetközeli hangulatot biztosít, amely valódi otthonérzetet nyújt a leendő tulajdonosok számára.

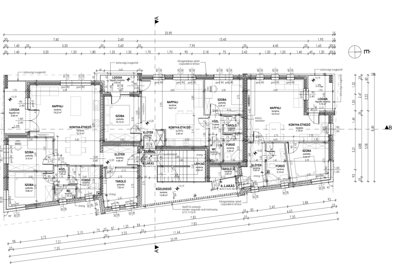
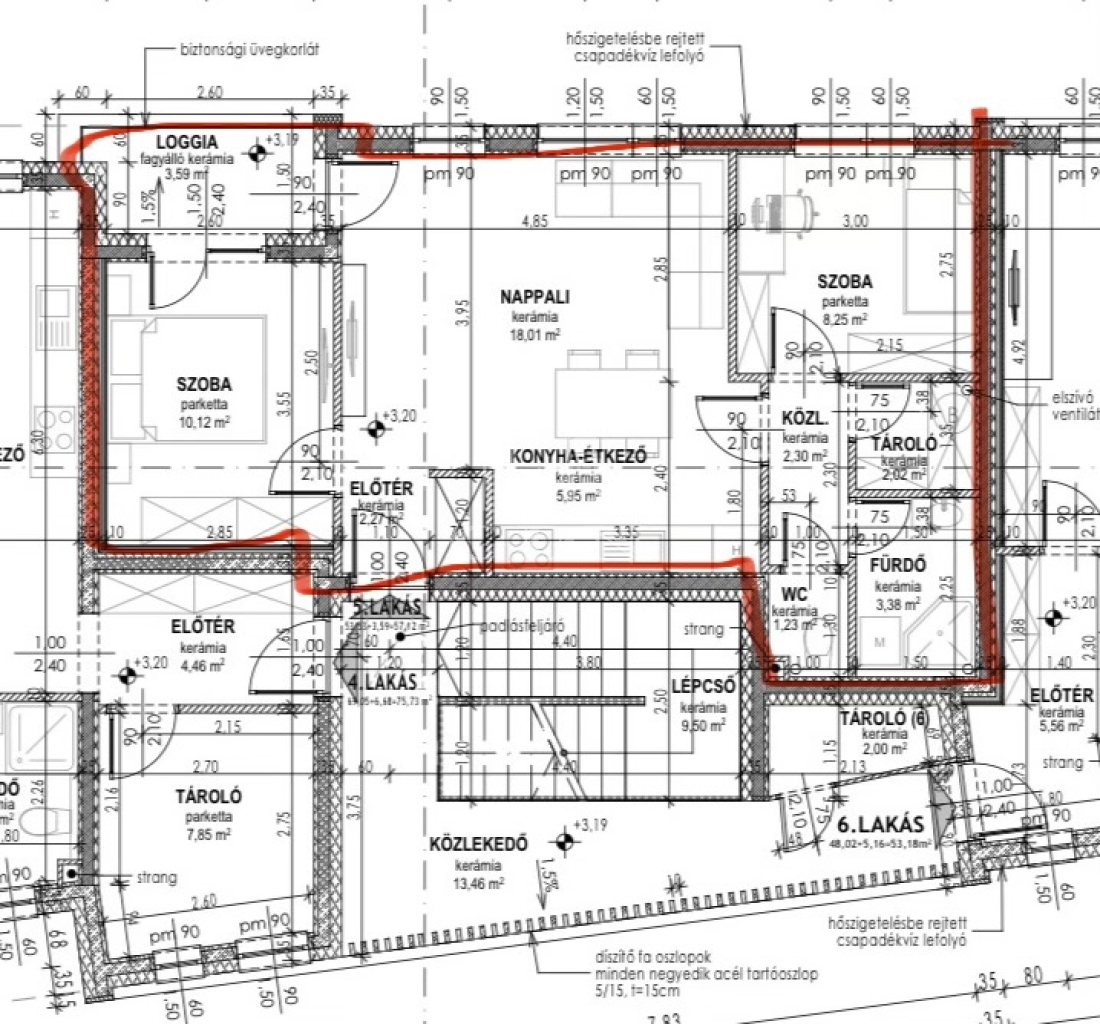
5. lakás 53,5 nm, Emeleti,
- tároló,
- előtér,
- szoba,
- szoba,
- Amerikai konyhás nappali,
- Fürdő,
- wc,
- közlekedő
- Erkély 3,5 nm.
- 82.750.000 Ft

További lakások az emeleten:
4. lakás: 109.500.000 Ft


MŰSZAKI TARTALOM

Szerkezet és szigetelés
• ProKoncept rendszerű falazat (25–35 cm vastagság)
• 15 cm vastag grafitos hőszigetelés a homlokzaton
• Lábazati és koszorú előtti hőszigetelés
• Talajnedvesség elleni bitumenes szigetelés
• Kiemelkedő hő- és hangszigetelési tulajdonságok

Tető
• Égetett agyag cserépfedés
• Alacsony hajlásszögű tetőrészeken korcolt fémlemez fedés
• Tartós, időjárásálló szerkezeti kialakítás

Nyílászárók
• Műanyag nyílászárók, 3 rétegű hőszigetelő üvegezéssel
• Jó hő- és hangszigetelési értékek
• Teraszajtók szintén 3 rétegű üvegezéssel

Fűtés – gépészet
• Levegő–víz hőszivattyús fűtési rendszer
• Felületfűtés (padlófűtés)
• Elektromos bojleres melegvíz-ellátás

Energia & jövőállóság
• Energiatakarékos, korszerű műszaki megoldások
• Napelem későbbi kiépítésének lehetősége
• Elektromos autó töltés előkészítése

Burkolatok, belső kialakítás
• Gipszkarton álmennyezet
• Burkolatok magas minőségben, választható kivitelben

Parkolás, környezet
• Telken belüli parkolás
• Minden lakáshoz saját autóbeálló
• Földszinti lakásokhoz saját kis kert
• Aszfaltozott utca, kiépített közművek

Az elkészült lakások lakhatási engedéllyel kerülnek átadásra!!!
Tervezett átadás: 2026. év vége!

Ütemezés: 20% foglaló, a fennmaradó összeg megbeszélés alapján.

Az ingatlan 3%-os Otthon Start hitellel is megvásárolható.


Irodánk 30 éves szakmai tapasztalattal áll ügyfelei rendelkezésére!
Bankfüggetlen hitelcentrummal, jogi hátérrel segítjük ingatlanvásárlását!
Várom szíves megkeresését, hívjon bizalommal!

Sună-mă

Proprietăți similare

Göbölyös Ágnes

Göbölyös Ágnes
Agent de publicitate

Contactează-mă!

+36-30-397-Arată

Mai multe anunțuri