Vânzare Primărie Budapest, XXII. kerület - Rózsavölgyi Kertkapcsolatos Sorház!

Vânzare Budapest, XXII. kerület Primărie
144 m2Suprafaţa 3 Camere
165 900 000 HUF Preţ
387114Identificare
Mai multe detalii

232 m2 Teren

Vedere spre grădină Vedere

Roman Stare

Caramida Structură

17 m2 Balcon/Terasă

Gaz Încălzire

Confort 1 Confort

Garaj/Parcare de vanzare Parcare

Etaj Parter

Inexistent Lift

Bun Transport public

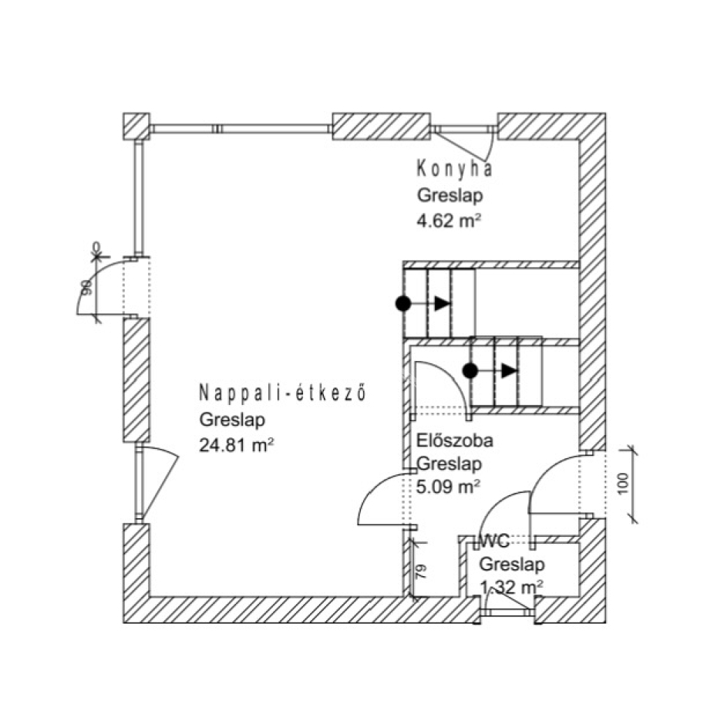
Bucătarie deschisă

Existent Acces la grădină

2010 An construcție

Sud Vest Orientare

Prémium sorházi lakás saját kerttel Rózsavölgy zöldövezetében!

ÁRCSÖKKENÉS!

Eladó egy kivételes szélső sorházi lakás Budapest XXII. kerületében, Rózsavölgy legszebb részén, ahol a természet közelsége és a városi kényelem tökéletes egyensúlyban van. Ideális választás családoknak, akik nyugalomra vágynak, de fontos számukra a gyors belvárosi elérhetőség (15–20 perc).

Főbb jellemzők:
144 m² -en modern belső terek
Nappali + 2 hálószoba (akár 3 hálószobássá alakítható)
2 fürdőszoba + 3 WC
232 m² saját kert, több erkély és terasz
Teljesen gépesített, modern konyha.
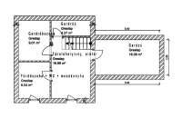
Mindebből 38 m² tágas gardrób, mosókonyha, tároló, amely akár edzőtermi, wellness funkcióvá is alakítható , 16 m² fűtött garázs , vizes-kiállással, töltési lehetőséggel + udvari beálló.
Kettő Klímaberendezés.
Alacsony fenntartási költségek.

Három szint beosztása:
Pince (54 m²): garázs, gardrób, mosókonyha, tároló
Földszint (41,5 m² + 8 m² terasz): nappali, külön WC
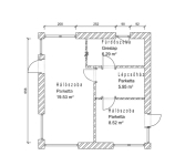
Emelet (41 m² + 9 m² erkély): 2 szoba, fürdőszoba (3 szoba könnyen kialakítható)

Környék:
Csendes, zöldövezeti elhelyezkedés, panorámás utca
Játszóterek, óvodák pár perc sétára
Savoya Park bevásárlóközpont a közelben
Kiváló közlekedés: belváros 15–20 perc alatt elérhető.

Képzeld el, hogy egy olyan otthonra bukkansz, ahol a madárcsicsergés az ébresztő, a kerted pedig saját kis birodalom. Ez az ingatlan ritka lehetőség Rózsavölgyben: tágas, modern, gazdaságos és családbarát. Ne maradjon le róla!
A sorházi lakás irányára: 165,9 millió Ft
Garázs, amely a lakással együttesen megvásárolandó: 10 millió Ft.

A környék infrastruktúrája kiváló, buszmegálló(251, 251A, 251E busz 8 perc gyalogos távolságban elérhető).

Az ingatlan megtekintése előre egyeztetett időpontban lehetséges, akár hétvégén is.
Amennyiben felkeltette az érdeklődését, további kérdéseivel kapcsolatban várom jelentkezését!
(J.D.)

Sună-mă

Proprietăți similare

Juhász Dóra

Juhász Dóra
Agent de publicitate

Contactează-mă!

+36-30-477-Arată

Mai multe anunțuri