Продается Квартира (панель) Budapest, XVIII. kerület - Csontváry Kosztka Tivadar utca

Продается Budapest, XVIII. kerület Квартира (панель)
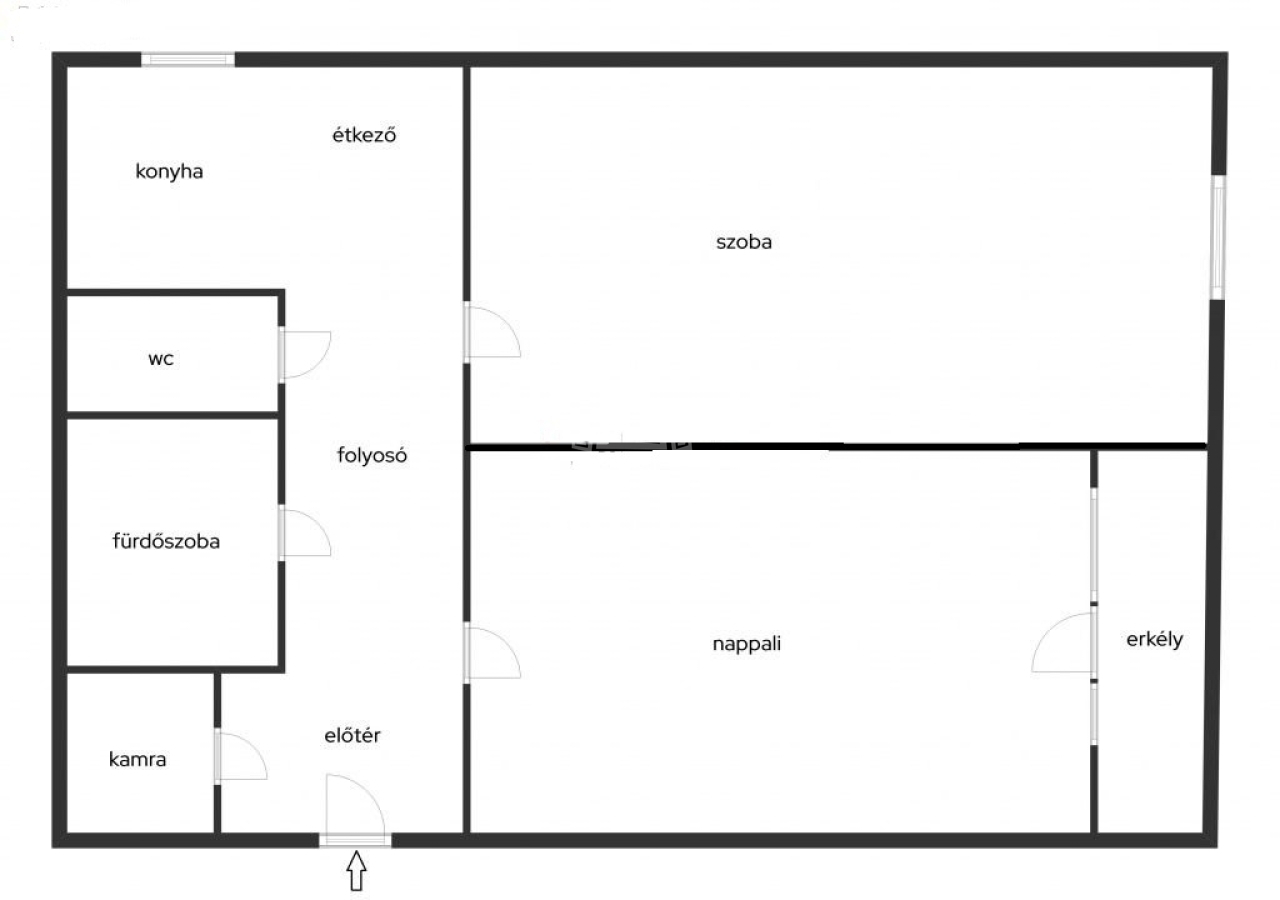
53 m2Площадь 2 Комната
60 900 000 HUF Цена
392294Идентификация
Прочие данные

Уличная вид

В хорошем состоянии Cостояние

Panel Kонструкция

3 m2 балкон/терраса

Система централизованного теплоснабжения отопление

plným komfortom Kомфортность

На улице, в общественном месте парковка

Этаж 2

Есть Лифт

Dobrý Общественный транспорт

No Американская кухня

Нет Есть сад

1980 Год строительства

ELADÓ LAKÁS – XVIII. KERÜLET, HAVANNA LAKÓTELEP
Csontváry Kosztka Tivadar utca

Keleti fekvésű, világos, erkélyes otthon keresi új tulajdonosát!

53 m² | 2. emelet | 2 szoba + gardrób | erkély
Panelprogramos, szép, rendezett házban
Lift ✔️ akadálymentesített ✔️ csendes környezet ✔️

Felújítások – nem most kezdődtek, hanem rendesen megcsinálva:
✅ Parketták cseréje – 5 éve
✅ Villanyvezetékek – 4 éve
✅ Fürdőszoba – 1 éve teljes felújítás
✅ Bejárati + belső ajtók – cserélve
✅ Hűtő–fűtő klíma mindkét szobában

Finanszírozás: Mindössze 12.000.000 Ft önerő szükséges

Közös költség: 14670 Ft / hó
Távfűtés átalány: 9.500 Ft / hó
Villany & víz: egyedi mérés szerint

Környék: kiváló infrastruktúra
tömegközlekedés pár perc
iskola, óvoda, bolt, minden karnyújtásnyira
nyugodt, élhető lakótelepi környezet
Ne gondolkodj sokáig – az ilyen lakások gyorsan elmennek!

Перезвоните мне

Похожая недвижимость

Nyári Katalin

Nyári Katalin

Звоните нам с доверием

+36-30-720- Показать

Другие объявления