出卖 双面别墅 Budapest, III. kerület - Testvérhegyi út

出卖 Budapest, III. kerület 双面别墅
209 m2面积 4 房间
395 000 000 HUF 价格
393783识别码
更多信息

400 m2 地皮

全景 风景

新建 状态

Tégla 架构

110 m2 阳台

热泵 暖气

De lux 舒适感

自己的车库 停车

Kiváló 公共交通

美国式厨房

有 有园子

2026 修建年

Délkelet 方向

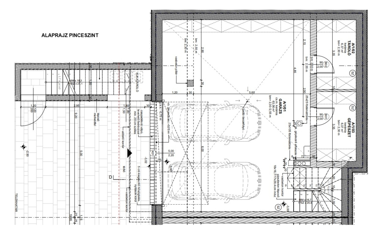
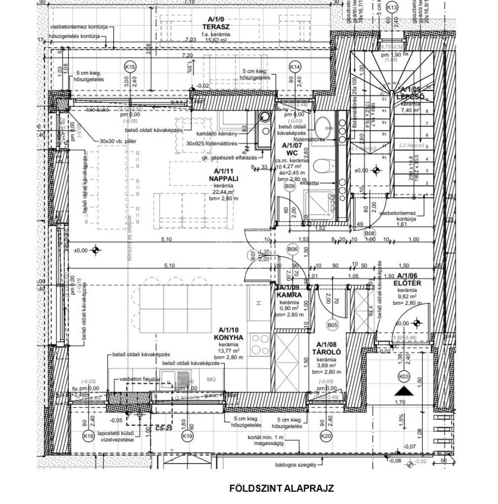
BUDAPEST III. KERÜLET Testvérhegyen, ÚJ ÉPÍTÉSŰ, bruttó 209 m2 alapterületű, 4 szobás, 3 szintes, duplakomfortos, PRÉMIUM minőségben kivitelezett, 360 fokban ÖRÖKPANORÁMÁS terasszal, kandallóval, dupla garázzsal rendelkező LUXUS kategóriás ikerházi lakás a hozzá tartozó 400 m2 telekkel, megbízható kivitelezőtől ELADÓ.

A TÖBB ÉVTIZEDES építési TAPASZTALATTAL rendelkező kivitelező olyan lakásokat épít, amelyek biztonságot, stabilitást nyújtanak, ezért is tartja kötelességének, hogy a LEGJOBB minőséget és a legkörültekintőbb kiszolgálást nyújtsa. MEGBÍZHATÓ, igényes kivitelezőtől LUXUS minőségű ingatlant vásárolhat.

MŰSZAKI TARTALOM:
Hőszigetelés az előírásoknak megfelelően (15 cm) grafitos, válaszfalak 10 cm-es válaszfaltégla.
Daikin hőszivattyús mennyezet hűtés-fűtés és padlófűtés.
Vízszűrő rendszer (vízkőmentesítővel).
Hővisszanyerő szellőztető rendszer.
Hofstadter 3 rétegű 6 légkamrás külső nyílászárók.
Zsaluzia, szúnyogháló beépítés.
Prémium kategóriás olasz hideg- és melegburkolat, szaniterek.
Hofstadter beltéri ajtók tokban nyíló/záródó, fürdőszobában automata küszöbbel.
Okos otthon rendszer.
Ujjlenyomattal működtetett bejárati ajtózár.
Érintő kijelzős kapcsolók.
Riasztó, kaputelefon előkészítés.
Elektromos autó töltő előkészítés.
Üvegkorlát.
Kandalló.
Kert: öntözőrendszer opcionális.

A kivitelezést modern, időtálló stílus és PRÉMIUM anyaghasználat jellemzi. Részletes műszaki tartalom a kivitelezővel történt egyeztetést követően. Alaprajz és fotók tájékoztató jellegűek.

Átadás: 2026.I. negyedév

Ajánlom azoknak, akik kényelmes, jól átgondolt terekkel rendelkező OTTHONT keresnek KITŰNŐ lokációban, ahol továbbá biztosított generációkon keresztül az ingatlan értékállósága.

Néhány perc távolságban a GoBuda Mall bevásárlóközpont, a British School és a közlekedés is KIVÁLÓ.

Hívjon bizalommal, ha az ajánlat felkeltette érdeklődését.

请给我回电话

相似的房产

Bajnóczi Beáta

Bajnóczi Beáta

随时给我们打电话

+36-70-489- 给我看

更多的广告