出卖 公寓房(砖头) Budapest, VII. kerület - Almássy tér

出卖 Budapest, VII. kerület 公寓房(砖头)
70 m2面积 2 + 1 房间
88 000 000 HUF 价格
395226识别码
更多信息

街道 风景

状态好 状态

Tégla 架构

燃气(循环式) 暖气

deplin confort 舒适感

在接到 停车

几层 1

没有 电梯

Kiváló 公共交通

No 美国式厨房

没有 有园子

1934 修建年

公关费用 29 000 HUF

Kelet 方向

ELADÓ LAKÁS BUDAPEST VII. KERÜLETÉBEN, ERZSÉBETVÁROSBAN, AZ ALMÁSSY TÉR KÖZELÉBEN.

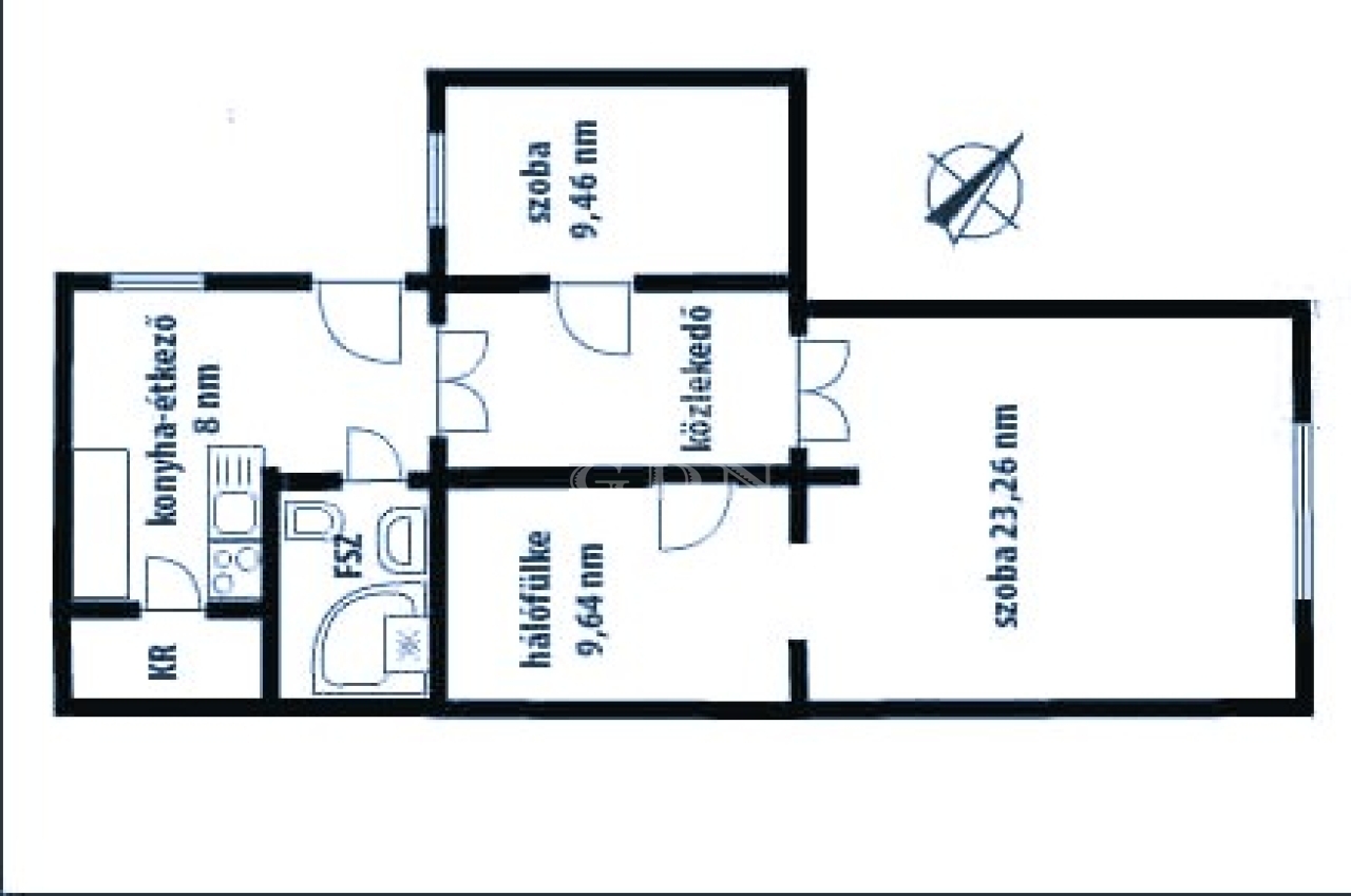
70 nm, 2 szoba+hall, (3 szobássá alakítható) 88 MFt.

Dér Krisztina
+36703603098

AZ INGATLAN ALKALMAS A 3%-OS OTTHON START HITELRE!

A környék az elmúlt időszakban megújult, a tér és a kapcsolódó sétálóutca felújítása megtörtént. A társasház a Wesselényi utcából közelíthető meg. A lakás nappalija az Almássy tér Barcsay utca felőli, csendesebb oldalára néz, további ablakai belső udvarra nyílnak.

A 70 nm alapterületű 2 szoba + hallos ingatlan jelenlegi elrendezése: nappali, abból nyíló hálófülke, külön bejáratú hálószoba, étkező-konyha, valamint fürdőszoba sarokkáddal. Az alaprajz lehetőséget biztosít átalakításra: a hall átszervezésével amerikai konyhás nappali, valamint két külön nyíló, ablakos hálószoba is kialakítható.

A lakásban a nyílászárók cseréje és a fűtés korszerűsítése megtörtént. A fűtést és a melegvíz-ellátást Baxi Ecofour kombi cirkó kazán biztosítja. A havi fenntartási költség – közös költséggel együtt – körülbelül 50 000 Ft, amely tartalmazza a felújítási alap hozzájárulását is.

A társasház homlokzata felújított, pénzügyi helyzete rendezett. A lakáshoz tartozik egy zárható pincerekesz, továbbá a társasházban közös, zárható kerékpártároló is rendelkezésre áll.

A 4–6-os villamos megállója rövid sétával elérhető. A közelben több felsőoktatási intézmény, vendéglátóhely és közlekedési csomópont található (Oktogon, Blaha Lujza tér, Keleti pályaudvar).

请给我回电话

相似的房产

Dér Krisztina

Dér Krisztina

随时给我们打电话

+36-70-360- 给我看

更多的广告