出卖 公寓房(砖头) Budapest, XII. kerület - Virányos

出卖 Budapest, XII. kerület 公寓房(砖头)
223 m2面积 5 房间
397 000 000 HUF 价格
394690识别码
更多信息

700 m2 地皮

外面是园子 风景

已翻新 状态

Tégla 架构

100 m2 阳台

燃气(循环式) 暖气

Dupla komfort 舒适感

自己的车库 停车

几层 Ground floor

没有 电梯

Bun 公共交通

No 美国式厨房

有 有园子

1930 修建年

Eladásra kínálunk egy különleges, kertkapcsolatos villalakást a XII. kerületben Virányos – Kétvölgy határán.
A polgári jellegű villalakás egy 700 m² kizárólagos használatú, intim, ősfás kerttel rendelkezik.

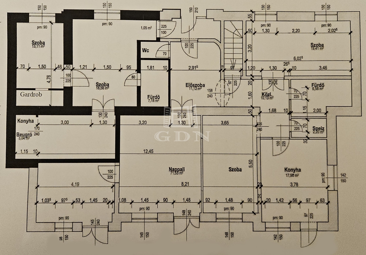
A 223 m² alapterületű ingatlan jelenleg két önálló lakásra van osztva, azonban igény esetén az eredeti, egybenyitott alaprajz könnyen visszaállítható, így a teljes lakótér egy nagyvonalú egységként is használható.

A nagyobb, 165 m² lakás helyiségei:

-71 m² nappali
-27 m² hálószoba
-19 m² dolgozószoba
-18 m² konyha–étkező
-21 m² előszoba
-Kamra
-6,58 m² fürdőszoba WC-vel
-50 m² wellnessrészleg a pincében

A kisebb, 54 m² lakás helyiségei:

-18 m² nappali
-13 m² hálószoba gardróbbal
-16 m² konyha–étkező
-7,18 m² fürdőszoba

Kert és parkolás:

-700 m² kert
-20 m² garázs + további autóbeálló

Az épület jellemzői:

A villa az 1900-as évek elején épült, és az eladásra kínált összesen 223 m² alapterületű ingatlan a lakásai a földszinten helyezkedik el, a wellness részlege pedig a pinceszinten
Mindkét lakás saját bejárattal rendelkezik, és a földszintről közelíthető meg.

A két külön lakás ideális lehet:

- többgenerációs együttéléshez,
- vendéglakás kialakításához,
- vagy kiadás céljára.

Lokáció:

Az ingatlan Virányos egyik csendes, zöldövezeti utcájában található. Autóval és tömegközlekedéssel egyaránt gyorsan elérhető a belváros és a környék fontos pontjai.
A környék nyugodt, biztonságos, kiváló infrastruktúrával rendelkezik.

Amennyiben Önnek a vásárláshoz szüksége lenne hitelre egyedi kedvezménnyel,kezdeményezheti a kapcsolatfelvételt bankfüggetlen hitelügyintézőinkkel, teljesen DÍJMENTESEN.

Az ingatlan részletes ismertetése és bemutatása előre egyeztetett időpontban lehetséges, melyet nagyon rugalmasan kezelünk, akár HÉTVÉGÉN is.

Amennyiben felkeltette az érdeklődését, további kérdéseivel kapcsolatban várom jelentkezését!

请给我回电话

相似的房产

László István

László István

随时给我们打电话

+36-30-638- 给我看

更多的广告