出租 公寓房(砖头) Budapest, XV. kerület - Árvavár utca

出租 Budapest, XV. kerület 公寓房(砖头)
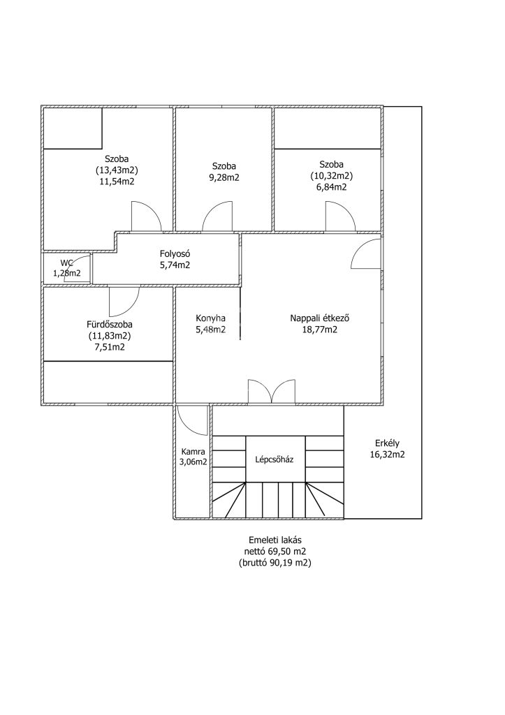
69 m2面积 2 + 2 房间
300 000 HUF /月 价格
392945识别码
更多信息

园子 风景

状态好 状态

Tégla 架构

16 m2 阳台

燃气(循环式) 暖气

deplin confort 舒适感

在接到 停车

几层 1

顶层

没有 电梯

宠物 No

Bun 公共交通

美国式厨房

有 有园子

屋顶房子

2002 修建年

Dél 方向

Fedezze fel ezt a jó állapotú, 69 m²-es, téglaépítésű lakást, mely Budapest kertvárosi részén, az Árvavár utcában található.

A lakás egy családi ház első emeletén helyezkedik el, és három különálló szobával rendelkezik, ideális választás lehet akár munkatársak, diákok számára is.
A gázcirkó fűtési rendszer gondoskodik a kellemes melegéről a hideg napokon.
A 15 m²-es erkélyről udvari kilátás nyílik, így nyugodt környezetben élvezheti a szabadban töltött időt.
Az ingatlan kiadó, várja új lakóit, akik értékelni fogják ennek a nyugodt, kertvárosi környezetnek az előnyeit.
Kényelmes otthona lehet annak, aki a városi élet közelében, mégis csendes, nyugodt környezetben szeretne élni. A tulajdonos, lehetőség szerint diákokat vár.

A lakás bérleti díja 300 000 Ft ( rezsivel együtt) 2 havi kaucióval, munkáltatói igazolással, határozatlan idejű munkaszerződéssel, és közjegyzői bérleti szerződéssel. A közjegyző költsége a bérlőt terheli.

Az épület alagsorában található körülbelül 52 m2 alapterületű alakformáló szalon, szoláriummal. Vállalkozás indítása esetén plusz 130.000 forint költségen bérelhető vagy önállóan is bérbe vehető.

请给我回电话

Kutas József

Kutas József

随时给我们打电话

+36-20-960- 给我看

更多的广告