Verkauf Einfamilienhaus Budapest, XVIII. kerület - Alacskai út

Verkauf Budapest, XVIII. kerület Einfamilienhaus
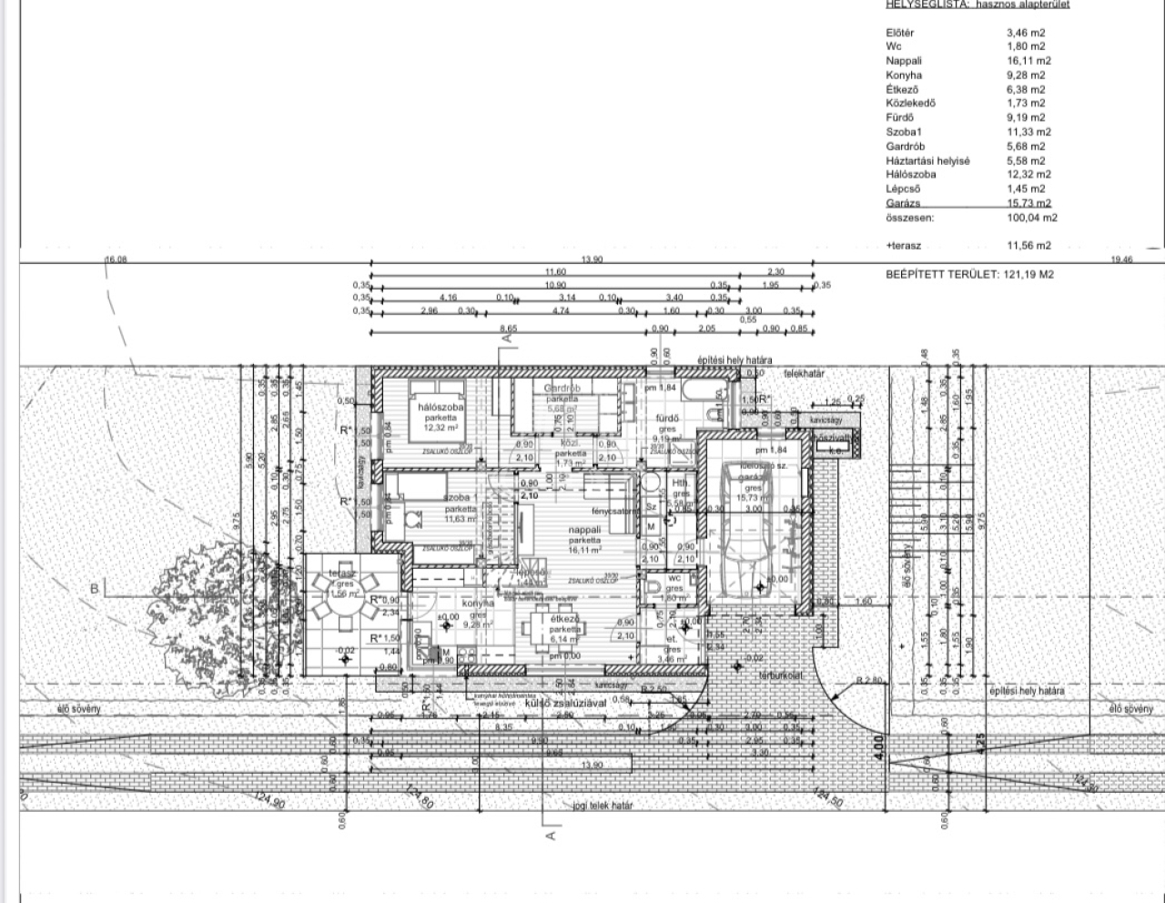
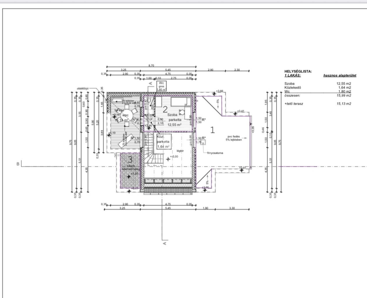
141 m2Wohnfläche 4 Zimmer
145 000 000 HUF Kaufpreis
384238ID nummer
Weitere Informationen

400 m2 Grundstück

Hof Ansicht

Neubau Zustand

Tégla Struktur

26 m2 Balkon/terrasse

Sonstige Heizung

Dupla komfort Komfort

Eigene Garage Parkplatz

Ausgezeichnet Öffentliche Verkehrsmittel

Amerikanische Küche

Es gibt Zugang zum garten

2025 Baujahr

Almáskert Villa Park – Új építésű luxus családi házak a XVIII. kerület egyik legkedveltebb részén!

Fedezze fel Budapest egyik legnyugodtabb, családbarát övezetét az Almáskertben, ahol három különálló, új építésű, modern családi ház várja leendő tulajdonosait!

Mit kínálunk?
✅ Önálló, belső kétszintes házak (földszint + emelet)
✅ Nappali + 3 hálószoba
✅ 3 mellékhelyiség, kádas-zuhanyzós, dupla mosdós fürdőszoba
✅ Tágas gardrób, tetőterasz, saját parkosított kert
✅ Fűtött garázs elektromos, szekcionált kapuval

Minőség kompromisszumok nélkül!
Az otthonok a legkorszerűbb anyagokból készülnek:
25 cm-es extra hőszigetelő Ytong falazat
10 cm grafitos dryvit szigetelés
3 rétegű antracit nyílászárók, elektromos alumínium redőnyök
20 cm födémszigetelés, időtálló cserépfedés

Energiahatékony és jövőálló otthon:
Hőszivattyús fűtés és hűtés (H-tarifa)
Fan-coil és padlófűtés minden helyiségben
Előkészített napelemrendszer és elektromos autótöltő

Rugalmas kialakítás:
A burkolatok, szaniterek, beltéri ajtók egyedi igény szerint választhatók
A fürdőszobákat bútorozva adjuk át
Egyedi módosítások még kivitelezhetők az építkezés előrehaladásától függően

Műszaki átadás: 2025 nyarán
Ár: 145.000.000 Ft – kulcsrakész állapotban!

Babaváró, CSOK és kamattámogatott hitel igénybe vehető
Ügyvédi költséget az építtető/beruházó átvállalja
Építkezés látogatható előre egyeztetett időpontban

Ne maradjon le róla! Hívjon bizalommal a hét bármely napján, és ismerje meg álmai otthonát személyesen!

Rufen Sie mich zurück

Ähnliche Immobilien

Gombár Renáta

Gombár Renáta
Inserent

Rufen Sie uns mit Vertrauen

+36-70-603- Zeig!

Andere eigene Anzeigen