出卖 办公室 Budapest, XIII. kerület - Váci út

出卖 Budapest, XIII. kerület 办公室
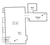
57 m2面积 2 房间
116 849 990 HUF 价格
382641识别码
更多信息

街道 风景

新建 状态

Tégla 架构

电供热 暖气

在接到 停车

几层 Ground floor

电梯

Kiváló 公共交通

2023 修建年

Nyugat 方向

BUDAPEST XIII. kerületben, a DUNA PLÁZA közelében, 51 lakásos, liftes, téglaépítésű társasházban, utcai bejáratú, földszinten elhelyezkedő, 57 m2 alapterületű üzlethelyiség ELADÓ.
A 2 emeletes 51 lakásos, liftes, téglaépítésű társasház a századfordulón épült, melynek teljes átépítése, felújítása történt és kapta meg jelenlegi arculatát. A fűtésről, meleg víz ellátásról elektromos cirkó gondoskodik, radiátor hő leadóval és hűtő-fűtő klíma is beszerelésre került. Az épület energetikai besorolása „B”.

Átadás: 2025. II. negyedév

Az épület biztonságáról 24 órás portaszolgálat gondoskodik. Gépjárművek parkolására a ház előtti kialakított parkolóban van lehetőség.
Az üzlethelyiséget tekintve, a lakók érdekeit szem előtt tartva, a tervek szerint nem vendéglátó egység létesítése a cél, amely esetleg a lakók nyugalmát és biztonságát zavarná.

A folyamatosan fejlődő városrészben a lokáció és a közlekedés kiváló. Közelben a Duna Pláza, Tesco bevásárlóközpont.
Hívjon bizalommal, ha az ajánlat felkeltette érdeklődését.
Bajnóczi Beáta
GDN Region Ingatlan

请给我回电话

Bajnóczi Beáta

Bajnóczi Beáta

随时给我们打电话

+36-70-489- 给我看

更多的广告